63 Chateauguay Street, Russell, Ontario K0A 1W0

Listed for:
$814,900
3 beds
3 baths
Listed 27 days ago
63 Chateauguay Street, Russell, Ontario K0A 1W0

View all 33 photos

About

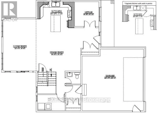
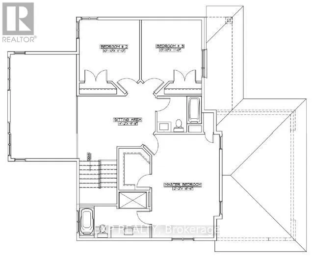
Cross Streets: Mayer. ** Directions: From St Thomas turn on Chateauguay. OPEN HOUSE February 15th 2:00pm-4:00pm AT 63 Chateauguay Street, Embrun. Introducing the Modern Maelle, a striking 2-storey home offering 1,936 square feet of contemporary living space designed with both function and flair. With 3 bedrooms, 2.5 bathrooms, and a 2-car garage, this home checks all the boxes for modern family living. Step inside and you're greeted by a den off the main entry ideal for a home office or creative space. Just off the garage, you'll find a convenient powder room and dedicated laundry area, keeping the main living areas clean and organized. The show-stopping living room features floor-to-ceiling windows that flood the space with natural light, creating an airy, uplifting atmosphere. A Loft on the second level offers a unique architectural detail, overlooking the living room below and adding a sense of openness and elegance. Upstairs, the primary suite offers a spacious walk-in closet and a private ensuite, creating the perfect personal retreat. Constructed by Leclair Homes, a trusted family-owned builder known for exceeding Canadian Builders Standards. Specializing in custom homes, two-storeys, bungalows, semi-detached, and now offering fully legal secondary dwellings with rental potential in mind, Leclair Homes brings detail-driven craftsmanship and long-term value to every project. (id:27476)

Property Highlights

MLS® Number
X12688048
Type
Vacant Land
Community Name
602 - Embrun
Land Size
10.9 x 91 M

Building

Bathrooms Total
3
Bedrooms Above Ground
3
Bedrooms Total
3
Fireplace Present
No
Basement Type
Full (Unfinished)
Basement Features
Building Heating Type
Forced air
Heating Fuel
Natural gas
Building Cooling Type
None

Location

Learn more about this property
Listing provided by:
LPT REALTY
MLS® number:
X12688048
Agent:
Ronald Jr. Mccomber-rozon
*Indicates required field
Name is required
Email is required
Please enter a valid phone number (e.g., 416-111-1111).