443 Ivings Drive, Saugeen Shores, Ontario N0H 2C3

Listed for:
$689,900
3 beds
3 baths
Listed 167 days ago
Row / Townhouse for rent: 443 Ivings Drive, Saugeen Shores, Ontario N0H 2C3

View all 15 photos

About

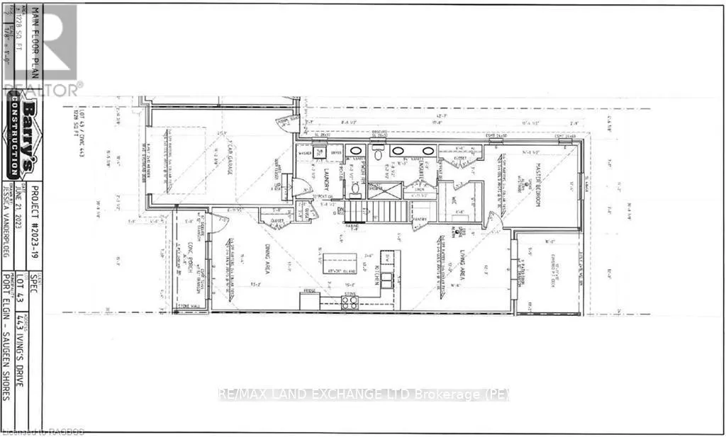
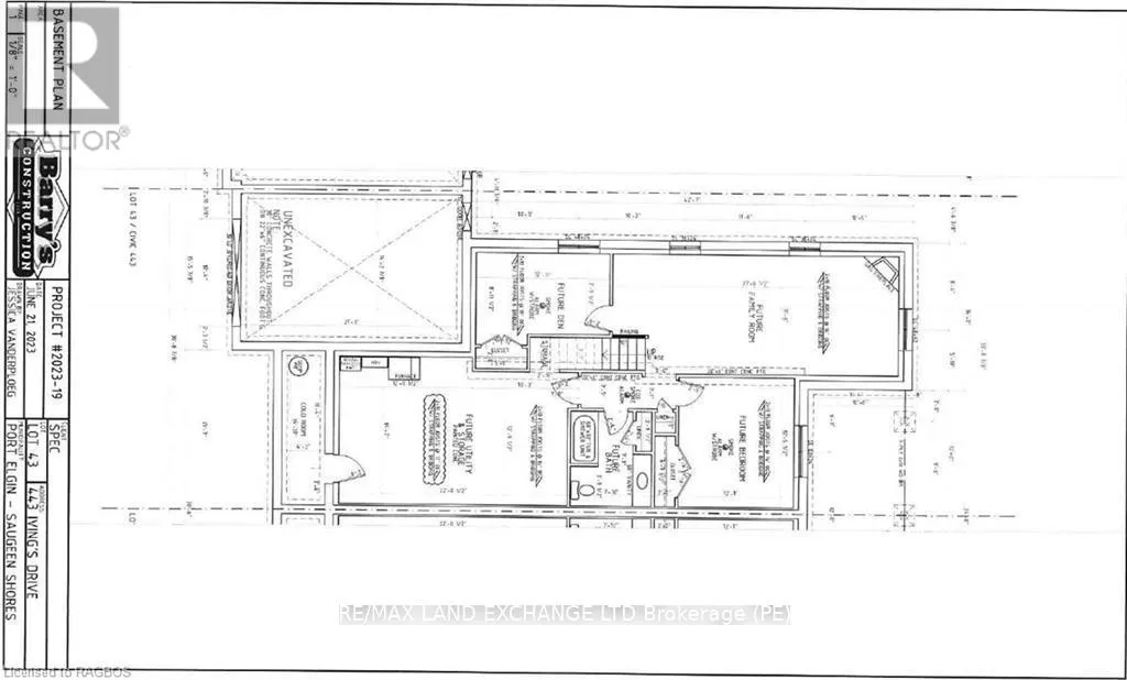
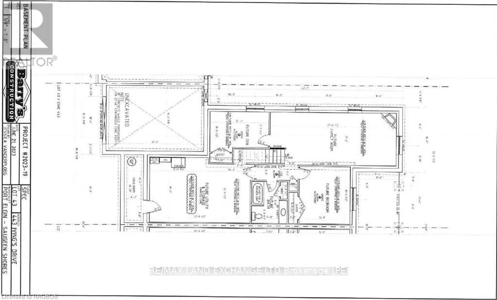
Ivings Drive North side between Ridge & Stickel The interior is just about complete for this 1228 sqft freehold townhome at 443 Ivings Drive in Port Elgin. The main floor features an open concept living room, dining room and kitchen, with hardwood floors, Quartz kitchen counters, & 9ft patio doors leading to a 10'11 x 10 covered deck, primary bedroom with a 4pc ensuite bath and walk-in closet, laundry room off the garage and a 2pc powder room. The basement will be finished with 2 bedrooms, 4pc bath, family room including gas fireplace and utility room with plenty of storage. This home will be heated with a gas forced air furnace and cooled with central air. HST is included in the asking price provided that the Buyer qualifies for the rebate and assigns it to the Builder on closing. (id:27476)

Property Highlights

MLS® Number
X10846875
Type
Single Family
Community Name
Saugeen Shores
Ownership Type
Freehold
Land Size
30.6 x 108 FT|under 1/2 acre
Parking Space Total
3

Building

Building Type
Row / Townhouse
Storeys
1.00
Square Footage
1100 - 1500 sqft
Bathrooms Total
3
Bedrooms Above Ground
1
Bedrooms Total
3
Amenities
Fireplace(s) Beach
Exterior Finish
Stone
Fireplace Present
Yes
Basement Type
Full (Finished)
Basement Features
Building Heating Type
Forced air
Heating Fuel
Natural gas
Building Cooling Type
Central air conditioning, Air exchanger

Utilities

Water
Municipal water
Utility Sewer
Sanitary sewer

Room Layout

Bedroom 2
Lower level
2.375 m x 2.731 m
Bedroom 3
Lower level
3.79 m x 3.68 m
Family room
Lower level
8.3 m x 3.5 m
Utility room
Lower level
4.32 m x 6.71 m
Cold room
Lower level
3.45 m x 1.72 m
Primary Bedroom
Main level
4.26 m x 3.79 m
Living room
Main level
3.73 m x 5.02 m
Kitchen
Main level
3.96 m x 4.572 m
Dining room
Main level
4.013 m x 3.96 m
Laundry room
Main level
2.15 m x 2.48 m

Location

Learn more about this property
Listing provided by:
RE/MAX Land Exchange Ltd.
MLS® number:
X10846875
Agent:
Hayden Duplantis
*Indicates required field
Name is required
Email is required
Please enter a valid phone number (e.g., 416-111-1111).

Street Spotlight - For sale