665 Watson Street, South Bruce Peninsula, Ontario N0H 2T0

Listed for:
$299,000
0 beds
0 baths
Listed 53 days ago
665 Watson Street, South Bruce Peninsula, Ontario N0H 2T0

View all 27 photos

About

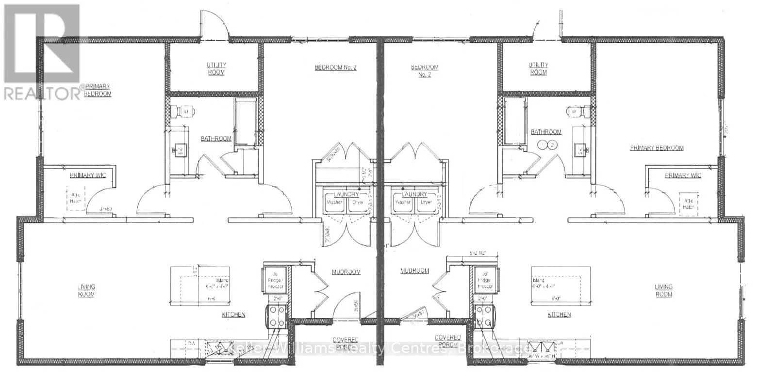
Cross Streets: Division and Watson Street. ** Directions: Watson Street. Your next investment is already underway with this vacant lot in Wiarton, where permits, studies, and grading plans are approved and in place for a duplex build. This rare turnkey development site with trusses on site and foundation prepped ready for concrete presents an excellent opportunity for builders, investors, or owner-occupiers seeking a streamlined path to construction. With key approvals already secured, you can move forward without the usual delays. For added flexibility, the sellers are open to building, offering a convenient start-to-finish option. Set in a family-friendly neighbourhood, the property has an existing shed and is located near schools and parks, making it ideal for long-term tenants or families looking for quality housing. You'll also enjoy close proximity to downtown Wiarton for everyday amenities and just a short drive to Sauble Beach, adding lifestyle appeal for future occupants. Whether you're building to invest, rent, or live, 665 Watson Street offers a rare chance to secure a ready-to-go duplex site in a growing Bruce Peninsula community. Take advantage of this turnkey opportunity-contact us today to explore the potential of this Wiarton build lot. (id:27476)

Property Highlights

MLS® Number
X12678536
Type
Vacant Land
Community Name
South Bruce Peninsula
Land Size
50.16 x 203.94 FT|under 1/2 acre

Building

Amenities
Marina, Place of Worship, Schools, Park
Fireplace Present
No
Basement Type
Basement Features
Building Heating Type
Heating Fuel
Building Cooling Type

Location

Learn more about this property
Listing provided by:
Keller Williams Realty Centres
MLS® number:
X12678536
Agent:
Adam Lesperance
*Indicates required field
Name is required
Email is required
Please enter a valid phone number (e.g., 416-111-1111).

Community Spotlight: Homes For sale in Your Neighborhood