7 Sullivan Street, South Huron, Ontario N0M 1T0

Listed for:
$1,449,900
3 beds
3 baths
Listed 110 days ago
House for rent: 7 Sullivan Street, South Huron, Ontario N0M 1T0

View all 29 photos

About

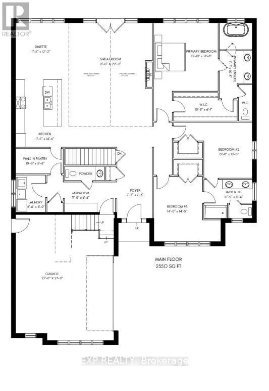
Cross Streets: Bluewater Highway and Dearing Drive. ** Directions: Head to Grand Bend-Turn North on Hwy #21 (Bluewater Hwy),Just past Oakwood on right (east) side of the road (next to the golf course-New Subdivision (no Entry) Flags at road. The townhomes will be immediately on the left as you drive in. *TO BE BUILT *PICTURES ARE OF PREVIOUSLY BUILT MODEL WITH UPGRADES. Welcome to the Azure model, the Magnus Homes 2025 Dream Lottery Home model which won LHBA Home of the Year + 4 other awards of creative excellence. This model features a 2350sqft main floor plus a bonus 520sqft loft above the garage. The main floor consists of 3 spacious bedrooms, all with en-suite and walk in closet privileges. The great room (18' x 22') features a 16' vaulted ceiling centred by the 10' kitchen island perfect for hosting, with a walkthrough butlers pantry. The expansive basement allows for an additional 3 rooms and large recreation room. Bonus loft above garage could be your home office, playroom, fitness room, media room and so much more! This model can only fit on limited lots in this development- or design your own Dream Home with our team to fit your wish list. Come see our Magnus standard in person at our model homes. Some features include engineered hardwood, quartz throughout, gas fireplace and main floor laundry. Inquire for more information from our sales team and tour our models today! Many other Magnus Homes Bungalows, townhomes and 2 storeys available in Sol Haven, Grand Bend to suite any lifestyle. Where timeless design meets the beauty of the shoreline. This site features kilometers of walking trails and is within walking distance to golf, restaurants, cafes and the Grand Bend Beach. Life is better when you live by the lake! (id:27476)

Property Highlights

MLS® Number
X12737770
Type
Single Family
Community Name
Stephen
Ownership Type
Freehold
Land Size
63 x 150 FT
Parking Space Total
6

Building

Building Type
House
Storeys
1.00
Square Footage
2500 - 3000 sqft
Bathrooms Total
3
Bedrooms Above Ground
3
Bedrooms Total
3
Exterior Finish
Brick
Fireplace Present
Yes
Basement Type
N/A (Unfinished)
Basement Features
Building Heating Type
Forced air
Heating Fuel
Natural gas
Building Cooling Type
Central air conditioning

Utilities

Water
Municipal water
Utility Sewer
Septic System

Room Layout

Dining room
Main level
3.5 m x 3.72 m
Mud room
Main level
3.35 m x 2.01 m
Laundry room
Main level
2.01 m x 2.43 m
Great room
Main level
5.48 m x 6.76 m
Kitchen
Main level
3.5 m x 4.45 m
Pantry
Main level
3.13 m x 1.64 m
Primary Bedroom
Main level
3.99 m x 4.51 m
Bathroom
Main level
2.16 m x 4.96 m
Bedroom 2
Main level
3.65 m x 3.2 m
Bedroom 3
Main level
4.26 m x 4.41 m
Bathroom
Main level
3.2 m x 2.56 m
Foyer
Main level
2.34 m x 2.31 m

Location

Learn more about this property
Listing provided by:
EXP REALTY
MLS® number:
X12737770
Agent:
Mike Ashby
*Indicates required field
Name is required
Email is required
Please enter a valid phone number (e.g., 416-111-1111).