1061 Vansickle Road N Unit# 303b, St. Catharines, Ontario L2M 2X4

Listed for:
$389,900
2 beds
1 baths
Listed 6 days ago
Apartment for rent: 1061 Vansickle Road N Unit# 303b, St. Catharines, Ontario L2M 2X4

View all 26 photos

About

Grapeview to Vansickle Rd N Bright 2-bed, 1-bath TOP floor Condo in a quiet low-rise building with an elevator, your own locker and a private parking spot. Delivering unobstructed Southern views, this unit is not only safe, it is private and thoughtfully designed with a functional layout and delivers an abundance of natural sunlight! This inviting unit is ideal for first-time buyers, downsizers, investors and is perfect for those in need of wheelchair accessibility!! The open-concept living provides a spacious kitchen with ample cabinetry and counter space, flowing seamlessly into the dining area—perfect for everyday living and entertaining. The living room is warm and welcoming with large windows and access to your covered balcony. The primary bedroom provides generous room for furnishings and double closets, while the second bedroom is perfect for guests, a home office, or family needs. A clean and functional 4-piece bath with a shower and soaker tub with jets and your own laundry room completes the living space. Additional highlights include both bedrooms, foyer, living room and dining room freshly painted, one dedicated parking spot, and a private locker for added storage. This well-kept building offers a quiet residential setting, lots of visitor parking and large grounds to walk pets. Ideally located close to schools, parks, trails, shopping, restaurants, and transit, with quick access to the QEW and Hwy 406, this home delivers outstanding convenience for commuters and lifestyle buyers alike. Providing excellent value and ease of ownership, this condo is a wonderful opportunity to enjoy comfortable living in one of St. Catharines’ most accessible neighbourhoods. (id:27476)

Property Highlights

MLS® Number
40823286
Type
Single Family
Maintenance Fee
590.64
Ownership Type
Condominium
Land Size
Unknown
Parking Space Total
1

Building

Building Type
Apartment
Storeys
1.00
Square Footage
995 sqft
Bathrooms Total
1
Bedrooms Above Ground
2
Bedrooms Total
2
Amenities
Hospital, Marina, Park, Place of Worship, Playground, Public Transit, Schools, Shopping
Exterior Finish
Other
Fireplace Present
No
Basement Type
None
Basement Features
Building Heating Type
Baseboard heaters
Heating Fuel
Electric
Building Cooling Type
Central air conditioning

Utilities

Water
Municipal water
Utility Sewer
Municipal sewage system

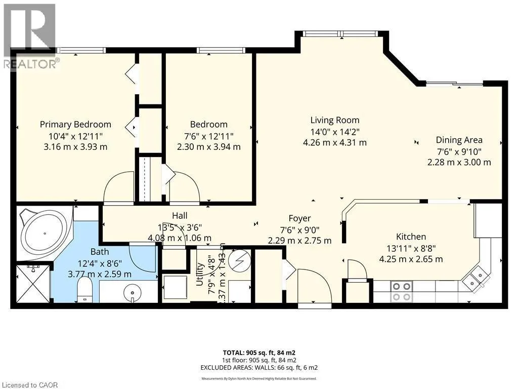
Room Layout

Utility room
Main level
7'9'' x 4'8''
4pc Bathroom
Main level
Measurements not available
Primary Bedroom
Main level
10'4'' x 12'11''
Bedroom
Main level
7'6'' x 12'11''
Kitchen
Main level
13'11'' x 8'8''
Dining room
Main level
7'6'' x 9'10''
Living room
Main level
14'0'' x 14'2''
Foyer
Main level
7'6'' x 9'0''

Location

Learn more about this property
Listing provided by:
Royal LePage NRC Realty Inc.
MLS® number:
40823286
Agent:
Sebastien Dusseault
*Indicates required field
Name is required
Email is required
Please enter a valid phone number (e.g., 416-111-1111).