Lot 18 Teravista, Sudbury, Ontario P3E 5A4

Listed for:
$899,000
4 beds
3 baths
Listed 14 days ago
House for rent: Lot 18 Teravista, Sudbury, Ontario P3E 5A4

View all 55 photos

Learn more about this property
Listing provided by:
RE/MAX CROWN REALTY (1989) INC., BROKERAGE (SUDBURY)
MLS® number:
2125932
Agent:
Colleen Kutchaw
*Indicates required field
Name is required
Email is required
Please enter a valid phone number (e.g., 416-111-1111).

About

Welcome to brand new model ""The Black Cherry"", built by Canadian National Award winners SLV Homes. This home is located in the sought after South End, close to the hospital, numerous schools, golf courses and all amenities. This three bedroom bungalow is perfectly designed for the addition of an in-law suite. The great room leads into a spacious open concept kitchen, living room and dining. Primary bedroom encompasses an ensuite and walk-in closet. The remaining two bedrooms host their own spacious bathroom. Do not miss your opportunity to create the space of your dreams with custom selections. House being built similar to photo. (id:27476)

Property Highlights

MLS® Number
2125932
Type
Single Family
Ownership Type
Freehold
Land Size
under 1/2 acre

Building

Building Type
House
Storeys
1.00
Bathrooms Total
3
Bedrooms Total
4
Amenities
Golf Course, Hospital, Public Transit, Schools
Exterior Finish
Brick, Vinyl siding
Fireplace Present
No
Basement Type
Full
Basement Features
Building Heating Type
Forced air
Heating Fuel
Building Cooling Type
Central air conditioning

Utilities

Water
Municipal water
Utility Sewer
Municipal sewage system

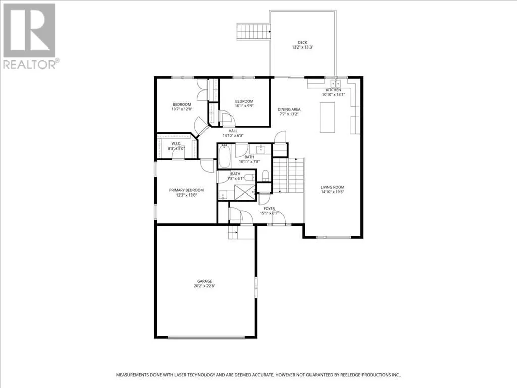
Room Layout

Bedroom
Main level
10'6 x 11
Living room
Main level
13 x 14'4
Bedroom
Main level
10'10 x 10
Primary Bedroom
Main level
12'6 x 13'10
Kitchen
Main level
19'9 x 19'3

Location