144 George Street, Tay, Ontario L0K 2A0

Listed for:
$724,777
4 beds
2 baths
Listed 161 days ago
House for rent: 144 George Street, Tay, Ontario L0K 2A0

View all 38 photos

Learn more about this property
Listing provided by:
RE/MAX Georgian Bay Realty Ltd
MLS® number:
S12300796
Agent:
Kevin Ellis
*Indicates required field
Name is required
Email is required
Please enter a valid phone number (e.g., 416-111-1111).

About

Cross Streets: Albert - George. ** Directions: Highway 12 to William St Victoria Harbour; Right on Albert St: Right on George St - Sign on. Welcome to this versatile and family-friendly home located in the heart of Victoria Harbour! This spacious property offers 3+ bedrooms, two bathrooms, a bright living area, and an eat-in kitchen perfect for everyday comfort. With in-law suite potential, its an ideal setup for multi-generational living or extra space for guests. Enjoy the large 80 x 100 in-town lot with a walkout to the back deck, perfect for summer barbecues and outdoor relaxation. The detached two-car garage provides ample storage and parking. Fully serviced and equipped with efficient gas heat, this home is within walking distance to local shops, schools, and the beautiful shores of Georgian Bay. A great opportunity for families or first-time buyers priced to sell! (id:27476)

Property Highlights

MLS® Number
S12300796
Type
Single Family
Community Name
Victoria Harbour
Ownership Type
Freehold
Land Size
82.8 x 101.3 FT
Parking Space Total
6

Building

Building Type
House
Storeys
1.00
Square Footage
700 - 1100 sqft
Bathrooms Total
2
Bedrooms Above Ground
3
Bedrooms Total
4
Exterior Finish
Vinyl siding
Fireplace Present
No
Basement Type
Full (Partially finished)
Basement Features
Building Heating Type
Forced air
Heating Fuel
Natural gas
Building Cooling Type
None

Utilities

Water
Municipal water
Utility Sewer
Sanitary sewer

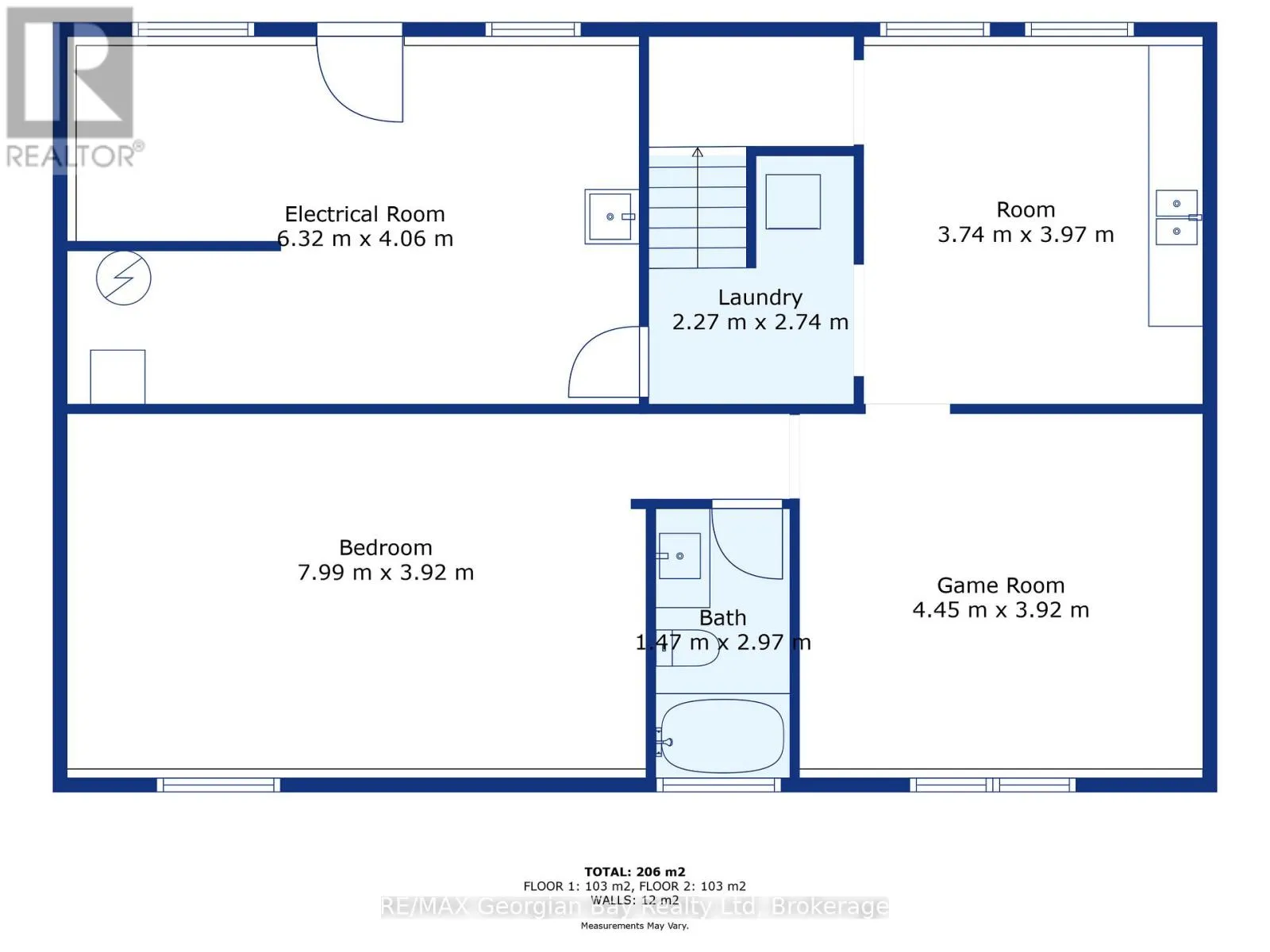
Room Layout

Bathroom
Basement
1.47 m x 2.97 m
Bedroom 4
Basement
7.99 m x 3.92 m
Other
Basement
3.74 m x 3.97 m
Laundry room
Basement
2.27 m x 2.74 m
Recreational, Games room
Basement
4.45 m x 3.92 m
Kitchen
Main level
4.2 m x 4.69 m
Living room
Main level
5.32 m x 3.41 m
Bathroom
Main level
2.02 m x 3.68 m
Bedroom
Main level
3.75 m x 3.68 m
Bedroom 2
Main level
3.21 m x 3.41 m
Bedroom 3
Main level
3.04 m x 3.41 m

Location

Community Spotlight: Homes For sale in Your Neighborhood