169 Harvest Lane, Thames Centre, Ontario N0L 1G2

Listed for:
$932,130
2 beds
2 baths
Listed 145 days ago
House for rent: 169 Harvest Lane, Thames Centre, Ontario N0L 1G2

View all 3 photos

About

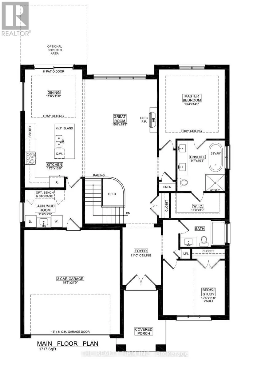
Cross Streets: Mill Rd & Harvest Ln. ** Directions: Head north on Dorchester Rd/County Rd 32 toward Second St. Turn left onto Donnybrook Dr. Turn right onto Mill Rd. Turn right toward Harvest Ln. Turn right. Welcome to The Birmingham, a thoughtfully designed bungalow by Stonehaven Homes, located in the highly sought-after neighbourhood of The Boardwalk at Mill Pond in Dorchester. Offering 1,717 sq. ft. of well-planned living space, this model features 2 bedrooms, 2 bathrooms, and an attached 2-car garage, delivering comfort, functionality, and timeless appeal. With quality craftsmanship and an efficient layout, The Birmingham is ideal for those seeking low maintenance living without compromise. Step inside to an inviting 11-foot ceiling foyer that sets the tone for the home's bright, open feel. The open-concept main living area is designed for both everyday living and entertaining, featuring a well-appointed kitchen with ample cabinetry, pantry, and an island with sink, seamlessly flowing into the dining area with tray ceilings and patio door leading to a covered deck. The adjacent great room is filled with natural light from large windows and anchored by a cozy electric fireplace. The grand primary bedroom offers a private retreat with tray ceilings, walk-in closet, and a luxurious 5-piece ensuite complete with a soaker tub and double sinks. The second bedroom with double closets and main 4-piece bathroom provides comfort and flexibility for guests. Completing the layout is a practical mudroom combined with a laundry room, offering direct access to the garage and enhancing everyday convenience. The unfinished basement offers a blank canvas to tailor to your needs; the possibilities are endless. Experience the pride of Stonehaven Homes and the beauty of The Boardwalk at Mill Pond in Dorchester. Discover a harmonious blend of modern living, exceptional craftsmanship, and the tranquility of nature in this remarkable model home. Please note: The render is for illustrative purposes only. (id:27476)

Property Highlights

MLS® Number
X12648206
Type
Single Family
Community Name
Dorchester
Ownership Type
Freehold
Land Size
50 x 114.8 FT
Parking Space Total
4

Building

Building Type
House
Storeys
1.00
Square Footage
1500 - 2000 sqft
Bathrooms Total
2
Bedrooms Above Ground
2
Bedrooms Total
2
Amenities
Fireplace(s)
Exterior Finish
Brick, Stone
Fireplace Present
Yes
Basement Type
N/A (Unfinished)
Basement Features
Building Heating Type
Forced air
Heating Fuel
Other
Building Cooling Type
Central air conditioning

Utilities

Water
Municipal water
Utility Sewer
Sanitary sewer

Room Layout

Mud room
Main level
3.51 m x 2.29 m
Kitchen
Main level
3.51 m x 3.96 m
Dining room
Main level
3.51 m x 3.35 m
Great room
Main level
4.57 m x 6 m
Primary Bedroom
Main level
4.06 m x 4.27 m
Bathroom
Main level
Measurements not available
Bathroom
Main level
Measurements not available
Bedroom 2
Main level
3.81 m x 3.35 m

Location

Learn more about this property
Listing provided by:
THE REALTY FIRM INC.
MLS® number:
X12648206
Agent:
Nick Davies
*Indicates required field
Name is required
Email is required
Please enter a valid phone number (e.g., 416-111-1111).

Street Spotlight - For sale