207 - 716 Gordon Baker Road, Toronto, Ontario M2H 3B4

Listed for:
$11
0 beds
0 baths
Listed 126 days ago
Offices for rent: 207 - 716 Gordon Baker Road, Toronto, Ontario M2H 3B4

View all 38 photos

Learn more about this property
Listing provided by:
HOMELIFE EXCELSIOR REALTY INC.
MLS® number:
C12284578
Agent:
Victor Sing
*Indicates required field
Name is required
Email is required
Please enter a valid phone number (e.g., 416-111-1111).

About

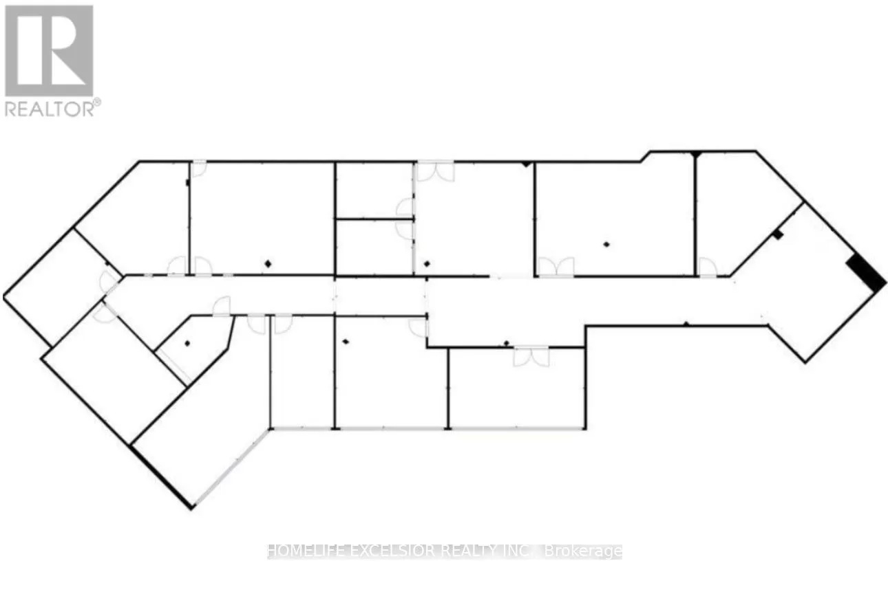
Cross Streets: Victoria Park & Steeles. ** Directions: Map. Prime Location! Situated near the junction of Hwy 404 and Steeles Avenue, with easy access to Woodbine Avenue, DVP, Hwy 401, and Hwy 407, this office unit boasts unparalleled convenience. Featuring over 10 rooms in various sizes and a welcoming reception area, this space is ideal for any business looking to thrive in a strategic and accessible location. (id:27476)

Property Highlights

MLS® Number
C12284578
Type
Office
Community Name
Hillcrest Village

Building

Building Type
Offices
Square Footage
7076 sqft
Fireplace Present
No
Basement Type
Basement Features
Building Heating Type
Forced air
Heating Fuel
Natural gas
Building Cooling Type
Fully air conditioned

Utilities

Water
Municipal water

Location

Street Spotlight - For lease