504 - 259 The Kingsway, Toronto, Ontario M9A 0G2

Listed for:
$2,100
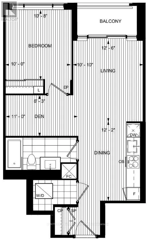
2 beds
1 baths
Listed 66 days ago
Apartment for rent: 504 - 259 The Kingsway, Toronto, Ontario M9A 0G2

View all 42 photos

Learn more about this property
Listing provided by:
CENTURY 21 ATRIA REALTY INC.
MLS® number:
W12486762
Agent:
Sharon Chung
*Indicates required field
Name is required
Email is required
Please enter a valid phone number (e.g., 416-111-1111).

About

Cross Streets: Dundas & Royal York. ** Directions: As Per Google Maps. Welcome to Edenbridge, a Tridel Built community in the desirable Kingsway community. A brand-new residence offering timeless design and luxury amenities. Just 6 km from 401 and renovated Humbertown Shopping Centre across the street - featuring Loblaws, LCBO, Nail spa, Flower shop and more. Residents enjoy an unmatched lifestyle with indoor amenities including a swimming pool, a whirlpool, a sauna, a fully equipped fitness centre, yoga studio, guest suites, and elegant entertaining spaces such as a party room and dining room with terrace. Outdoor amenities feature a beautifully landscaped private terrace and English garden courtyard, rooftop dining and BBQ areas. Close to Top schools, parks, transit, and only minutes from downtown Toronto and Pearson Airport. Parking currently not available for rent. (id:27476)

Property Highlights

MLS® Number
W12486762
Type
Single Family
Community Name
Edenbridge-Humber Valley
Ownership Type
Condominium/Strata

Building

Building Type
Apartment
Square Footage
600 - 699 sqft
Bathrooms Total
1
Bedrooms Above Ground
1
Bedrooms Total
2
Exterior Finish
Concrete
Fireplace Present
No
Basement Type
None
Basement Features
Building Heating Type
Forced air
Heating Fuel
Natural gas
Building Cooling Type
Central air conditioning

Location

Street Spotlight - For rent