622 - 259 The Kingsway, Toronto, Ontario M9A 0G2

Listed for:
$6,950
3 beds
2 baths
Listed 29 days ago
Apartment for rent: 622 - 259 The Kingsway, Toronto, Ontario M9A 0G2

View all 50 photos

Learn more about this property
Listing provided by:
Royal Lepage Real Estate Associates
MLS® number:
W12594552
Agent:
Justin Jeffery
*Indicates required field
Name is required
Email is required
Please enter a valid phone number (e.g., 416-111-1111).

About

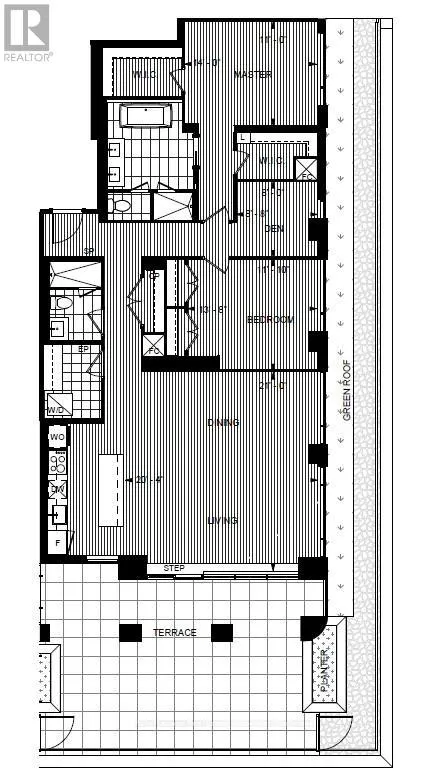
Royal York / Dundas St W Welcome to Edenbridge by Tridel, an exceptional residence offering luxury living in the heart of The Kingsway. This expansive 2-bedroom plus den, 2.5-bathroom suite spans 1659 sq. ft. and showcases a thoughtfully designed layout with generous principal rooms, elegant finishes, and a rare private terrace that extends the home's living space outdoors. The modern kitchen features full-height cabinetry, quartz countertops, integrated stainless steel appliances, and ample storage. Wide-plank flooring carries through the open dining and living areas, where large windows bring in abundant natural light and a seamless walk-out leads to the impressive terrace, ideal for outdoor dining, relaxation, and entertaining. The primary bedroom offers a true retreat with his-and-hers closets and a luxurious 5-piece ensuite complete with a double vanity, deep soaking tub, and separate shower. The second bedroom includes a large closet and easy access to a full bathroom. The spacious den, complemented by its own window, provides excellent flexibility for a home office or additional living space. A powder room, full laundry room, three parking spaces, and one locker offer enhanced convenience. Residents enjoy a premium collection of amenities including a fitness centre, indoor pool, sauna, rooftop terrace, guest suites, and 24-hour concierge. Ideally located near Humbertown Shopping Centre, parks, transit, and top-rated schools, this suite delivers a rare blend of space, comfort, and upscale living in one of Etobicoke's most desirable neighbourhoods. (id:27476)

Property Highlights

MLS® Number
W12594552
Type
Single Family
Community Name
Edenbridge-Humber Valley
Ownership Type
Condominium/Strata
Parking Space Total
3

Building

Building Type
Apartment
Square Footage
1600 - 1799 sqft
Bathrooms Total
2
Bedrooms Above Ground
2
Bedrooms Total
3
Amenities
Exercise Centre, Sauna, Storage - Locker, Security/Concierge Golf Nearby, Park, Place of Worship, Public Transit, Schools
Exterior Finish
Brick, Concrete
Fireplace Present
No
Basement Type
None
Basement Features
Building Heating Type
Forced air
Heating Fuel
Natural gas
Building Cooling Type
Central air conditioning

Location

Street Spotlight - For rent