216 - 7 Applewood Lane, Toronto, Ontario M9C 2Z7

Listed for:
$2,399
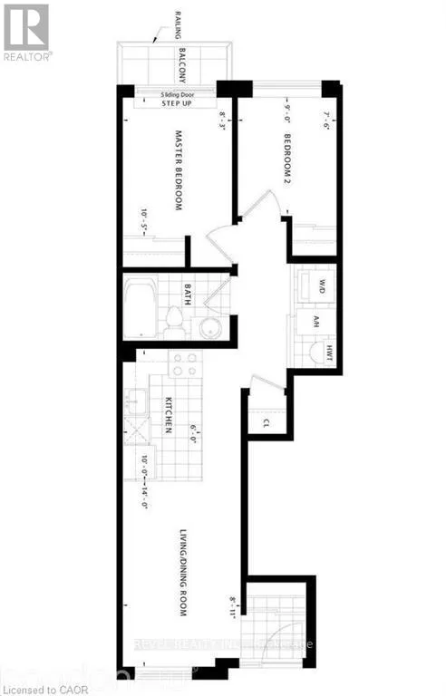
2 beds
1 baths
Listed 3 days ago
Apartment for rent: 216 - 7 Applewood Lane, Toronto, Ontario M9C 2Z7

View all 11 photos

Learn more about this property
Listing provided by:
REVEL REALTY INC.
MLS® number:
W12531394
Agent:
Abdellah Majd
*Indicates required field
Name is required
Email is required
Please enter a valid phone number (e.g., 416-111-1111).

About

The West Mall to Holiday Dr to Applewood Ln Gorgeous, Trendy and Conveniently Located! This 2 bedroom 1 Bathroom Townhome is located close to all amenities & available for December 1st 2025. This unit includes stainless steel appliances, top notch and trendy finishes as well as ensuite laundry. Parking can be rented separately if needed. Utilities extra. (id:27476)

Property Highlights

MLS® Number
W12531394
Type
Single Family
Community Name
Etobicoke West Mall
Maintenance Fee
275.29
Ownership Type
Condominium/Strata
Parking Space Total
1

Building

Building Type
Apartment
Storeys
3.00
Square Footage
700 - 799 sqft
Bathrooms Total
1
Bedrooms Above Ground
2
Bedrooms Total
2
Amenities
Storage - Locker
Exterior Finish
Stucco, Brick Veneer
Fireplace Present
No
Basement Type
None
Basement Features
Building Heating Type
Forced air
Heating Fuel
Natural gas
Building Cooling Type
Central air conditioning

Location

Street Spotlight - For rent