50 Cardiff Road, Toronto, Ontario M4P 2P2

Listed for:
$999,900
5 beds
5 baths
Listed 7 days ago
House for rent: 50 Cardiff Road, Toronto, Ontario M4P 2P2

View all 12 photos

Learn more about this property
Listing provided by:
SUTTON GROUP-ADMIRAL REALTY INC.
MLS® number:
C12537832
Agent:
Behnam Amirghassemi
*Indicates required field
Name is required
Email is required
Please enter a valid phone number (e.g., 416-111-1111).

About

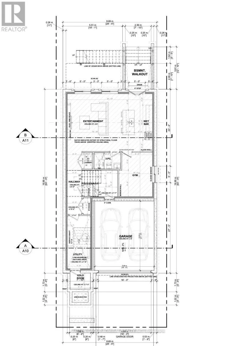
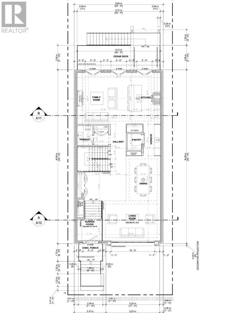
Bayview and Eglinton A rare opportunity to build tomorrow. building permit is in hand for this architecturally magnifcent residence designed by award-winning Zanjani Architects. Situated on one of the most coveted and private lots in Leaside, this property boasts an extra-deep 136-foot lot with no homes backing onto it, offering the ultimate secluded backyard oasis perfect for a pool and outdoor entertaining. Located on a quiet, family-friendly street just a short walk to the vibrant shops and restaurants of Bayview and Mt. Pleasant, and within the highly sought-after Northlea and Leaside school districts, this property combines luxury living with everyday convenience.The approved plans feature 4,343 sq. ft. of total living space, making it one of the largest homes in the neighbourhood, with 10 ceilings on the main foor, 9 on the second, and 10 ceilings in the basement. All approvals are in place COA passed (June), tree permit obtained, fees paid, locates and disconnects requested everything is ready for you to start demolition and construction immediately. Hydro pole is being removed from property and hydro will come from across the street. (id:27476)

Property Highlights

MLS® Number
C12537832
Type
Single Family
Community Name
Bridle Path-Sunnybrook-York Mills
Ownership Type
Freehold
Land Size
33.5 x 136 FT
Parking Space Total
2

Building

Building Type
House
Storeys
2.00
Square Footage
3000 - 3500 sqft
Bathrooms Total
5
Bedrooms Above Ground
4
Bedrooms Total
5
Amenities
Fireplace(s)
Exterior Finish
Brick, Stone
Fireplace Present
Yes
Basement Type
N/A (Finished), N/A
Basement Features
Walk out, Separate entrance
Building Heating Type
Forced air
Heating Fuel
Natural gas
Building Cooling Type
Central air conditioning, Air exchanger

Utilities

Water
Municipal water
Utility Sewer
Sanitary sewer

Room Layout

Bedroom
Second level
5.273 m x 4.91 m
Bedroom 2
Second level
4.12 m x 3.2 m
Bedroom 3
Second level
4.13 m x 3.2 m
Bedroom 4
Second level
4.12 m x 3.2 m
Kitchen
Basement
5.36 m x 3.66 m
Living room
Basement
5.36 m x 4.9 m
Bedroom 5
Basement
4.12 m x 3.2 m
Living room
Main level
5.715 m x 3.688 m
Dining room
Main level
4.39 m x 3.35 m
Eating area
Main level
3.11 m x 1.1 m
Kitchen
Main level
5.1 m x 5.72 m
Family room
Main level
5.1 m x 5.12 m

Location