6 Gerald Street, Toronto, Ontario M2L 2M5

Listed for:
$3,380,000
3 beds
2 baths
Listed 34 days ago
House for rent: 6 Gerald Street, Toronto, Ontario M2L 2M5

View all 31 photos

Learn more about this property
Listing provided by:
RE/MAX REALTRON BARRY COHEN HOMES INC.
MLS® number:
C12544416
Agent:
Barry Cohen
*Indicates required field
Name is required
Email is required
Please enter a valid phone number (e.g., 416-111-1111).

About

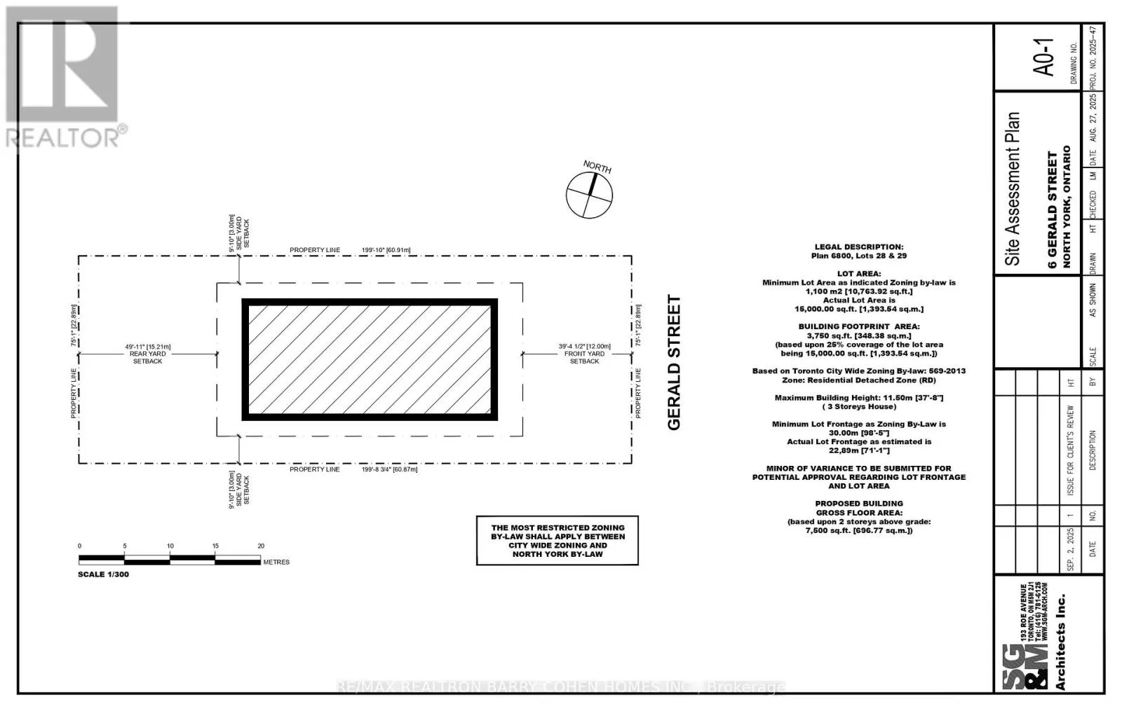
Cross Streets: York Mills/Bayview. ** Directions: East of Bayview. Most Sought-After Bayview Gardens Sprawling Bungalow. Move In, Update As Per Illustration, Or Build Your Dream Home Up To 7,500 Square Feet. This Beautiful Stucco Bungalow Features Charming Courtyard With Wrought Iron Gated Entrance And Arched Portico, 3 Bedrooms, 2 Bathrooms, Main Floor Laundry, Stunning Solarium With Southern And Western Exposure, Functional Eat-In Kitchen And Laundry, Formal Living And Dining Rooms, And A Beautiful Main-Floor Family Room With Impeccable Millwork. The Finished Basement Welcomes You With A Spacious Wet Bar And An Equally Expansive Recreation Room, Office, Cedar Closet And Cold Storage, Plus Plenty Of Unfinished Space With Room To Expand. The Tranquil Rear Gardens Are Fully Fenced And Surrounded By Lush Greenery Providing The Perfect Blank Canvas For Future Landscaping Projects. This Premium Property In The Family-Friendly St Andrew-Windfields Neighbourhood Is Near To Renowned Public And Private Schools, York Mills Centre, Granite Club, And Rosedale Golf Club. Within Minutes Of HWY 401 And With Easy Access To Downtown Toronto. (id:27476)

Property Highlights

MLS® Number
C12544416
Type
Single Family
Community Name
St. Andrew-Windfields
Ownership Type
Freehold
Land Size
75 x 200 FT
Parking Space Total
6

Building

Building Type
House
Storeys
1.00
Square Footage
2000 - 2500 sqft
Bathrooms Total
2
Bedrooms Above Ground
3
Bedrooms Total
3
Amenities
Golf Nearby, Park, Public Transit
Exterior Finish
Brick
Fireplace Present
Yes
Basement Type
Partial
Basement Features
Building Heating Type
Forced air
Heating Fuel
Natural gas
Building Cooling Type
Central air conditioning

Utilities

Water
Municipal water
Utility Sewer
Sanitary sewer

Room Layout

Office
Lower level
3.96 m x 2.46 m
Recreational, Games room
Lower level
7.52 m x 5.11 m
Foyer
Main level
4.04 m x 2.49 m
Living room
Main level
6.43 m x 4.01 m
Dining room
Main level
3.56 m x 3.53 m
Kitchen
Main level
5.36 m x 3.53 m
Family room
Main level
5.26 m x 3.96 m
Sunroom
Main level
5.92 m x 4.06 m
Primary Bedroom
Main level
5.46 m x 4.04 m
Bedroom 2
Main level
4.67 m x 3.4 m
Bedroom 3
Main level
4.06 m x 3.43 m

Location

Community Spotlight: Homes For sale in Your Neighborhood