31 - 851 Sheppard Avenue W, Toronto, Ontario M3H 0G2

Listed for:
$2,750
2 beds
3 baths
Listed 27 days ago
Row / Townhouse for rent: 31 - 851 Sheppard Avenue W, Toronto, Ontario M3H 0G2

View all 18 photos

Learn more about this property
Listing provided by:
ROYAL LEPAGE REAL ESTATE SERVICES LTD.
MLS® number:
C12600758
Agent:
Peter J Brown
*Indicates required field
Name is required
Email is required
Please enter a valid phone number (e.g., 416-111-1111).

About

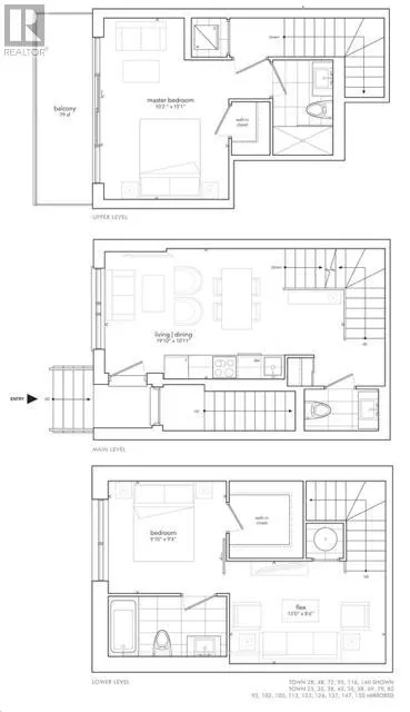
Cross Streets: Sheppard Ave. W / East of Dufferin St. ** Directions: Sheppard Ave. W / Faywood Blvd. Introducing Greenwich Village Towns, a contemporary townhome development by Crown Communities, ideally located just steps from Sheppard West Subway Station. This stylish 1,010 sq. ft. home offers 2 generous bedrooms, 2.5 bathrooms, and a 79 sq. ft. balcony. The open-concept layout features a European inspired kitchen with sleek cabinetry, quartz countertops, a stylish backsplash, and stainless steel appliances. Laminate flooring, 9' ceilings, and a wood staircase enhance the home's modern appeal. The building also offers bike storage and visitor parking. Enjoy easy transit access to York University, with Yorkdale Shopping Center and Downsview Park just minutes away by car. (id:27476)

Property Highlights

MLS® Number
C12600758
Type
Single Family
Community Name
Bathurst Manor
Ownership Type
Condominium/Strata
Parking Space Total
1

Building

Building Type
Row / Townhouse
Storeys
3.00
Square Footage
1000 - 1199 sqft
Bathrooms Total
3
Bedrooms Above Ground
2
Bedrooms Total
2
Amenities
Storage - Locker
Exterior Finish
Brick
Fireplace Present
No
Basement Type
None
Basement Features
Building Heating Type
Forced air
Heating Fuel
Natural gas
Building Cooling Type
Central air conditioning

Location

Street Spotlight - For rent