1011 - 88 Queen Street E, Toronto, Ontario M5C 0B6

Listed for:
$2,800
2 beds
2 baths
Listed 44 days ago
Apartment for rent: 1011 - 88 Queen Street E, Toronto, Ontario M5C 0B6

View all 2 photos

About

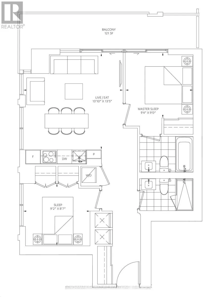
Cross Streets: Queen St E & Church. ** Directions: NW. Welcome To This Bright And Functional 2 Bedroom, 2 Bathroom Suite At 88 Queen Street East, Perfectly Suited For Students And Young Professionals Looking For Space, Convenience, And Downtown Connectivity. Featuring A Smart Layout With Two Full Bathrooms And Excellent Bedroom Separation, This Unit Is Ideal For Roommates Or Shared Living While Maintaining Privacy. The Open Living And Dining Area Creates A Comfortable Space For Studying, Working From Home, Or Relaxing, While The Practical Kitchen Offers Plenty Of Cabinet Storage And Everyday Functionality. The Primary Bedroom Includes A Private Ensuite, And The Second Bedroom Is Well-Sized And Served By A Full Second Bathroom-A Rare And Highly Desirable Feature In Downtown Rentals. Enjoy Access To Impressive Building Amenities Including A Fully Equipped Gym, Yoga Studio, Party Room, Social Lounge, And Outdoor Swimming Pool-Perfect For Both Wellness And Social Living. Located Steps To Queen Subway Station, Toronto Metropolitan University (TMU), Eaton Centre, Restaurants, Cafes, And Daily Essentials, With Easy TTC Access Making Commuting Simple And Efficient. (id:27476)

Property Highlights

MLS® Number
C12673474
Type
Single Family
Community Name
Church-Yonge Corridor
Ownership Type
Condominium/Strata

Building

Building Type
Apartment
Square Footage
700 - 799 sqft
Bathrooms Total
2
Bedrooms Above Ground
2
Bedrooms Total
2
Amenities
Exercise Centre, Security/Concierge Hospital, Public Transit, Schools
Exterior Finish
Concrete
Fireplace Present
No
Basement Type
None
Basement Features
Building Heating Type
Forced air
Heating Fuel
Natural gas
Building Cooling Type
Central air conditioning

Location

Learn more about this property
Listing provided by:
MLS® number:
C12673474
Agent:
Ming Wong
*Indicates required field
Name is required
Email is required
Please enter a valid phone number (e.g., 416-111-1111).

Street Spotlight - For rent