301 - 19 Western Battery Road, Toronto, Ontario M6K 3S4

Listed for:
$2,200
2 beds
1 baths
Listed 17 days ago
Apartment for rent: 301 - 19 Western Battery Road, Toronto, Ontario M6K 3S4

View all 19 photos

About

King W / Strachan Welcome to Liberty Village! Ideally situated next to Strachan Avenue, this location offers unbeatable convenience for getting in and out of Liberty Village. Whether you prefer to walk, take the TTC or GO Transit, or drive via the Gardiner or Lakeshore, you're just minutes from your favourite downtown destinations - from waterfront trails and scenic parks to vibrant bars and restaurants. The suites are thoughtfully designed for everyday functionality, and the planned amenities are truly exceptional. Enjoy access to a 3,000 sq. ft. spa, an open-air jogging track, outdoor yoga space, spin studio, free weights, and more! Don't miss your chance to experience it - book your showing today! (id:27476)

Property Highlights

MLS® Number
C12735540
Type
Single Family
Community Name
Niagara
Ownership Type
Condominium/Strata

Building

Building Type
Apartment
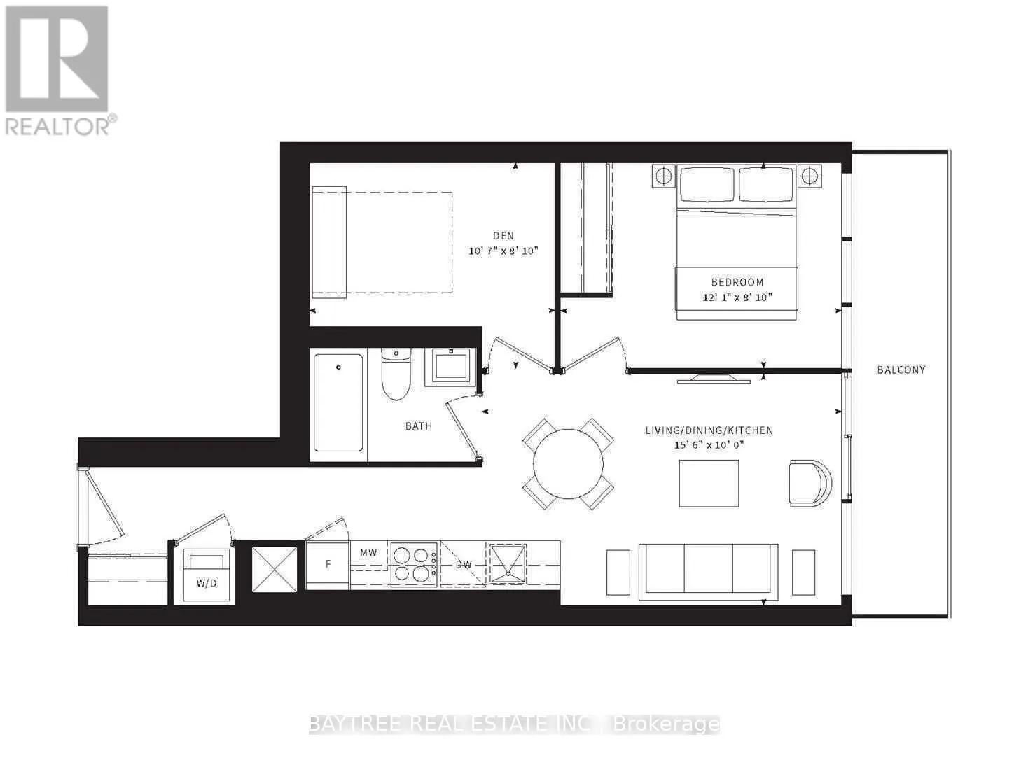
Square Footage
500 - 599 sqft
Bathrooms Total
1
Bedrooms Above Ground
1
Bedrooms Total
2
Amenities
Security/Concierge, Exercise Centre, Party Room Park, Public Transit
Exterior Finish
Concrete
Fireplace Present
Yes
Basement Type
None
Basement Features
Building Heating Type
Forced air
Heating Fuel
Natural gas
Building Cooling Type
Central air conditioning

Location

Learn more about this property
Listing provided by:
BAYTREE REAL ESTATE INC.
MLS® number:
C12735540
Agent:
Darrin Lucas Couroux
*Indicates required field
Name is required
Email is required
Please enter a valid phone number (e.g., 416-111-1111).

Street Spotlight - For rent