1407 - 88 Harbour Street N, Toronto, Ontario M5J 0C3

Listed for:
$2,600
2 beds
1 baths
Listed 3 days ago
Apartment for rent: 1407 - 88 Harbour Street N, Toronto, Ontario M5J 0C3

View all 12 photos

About

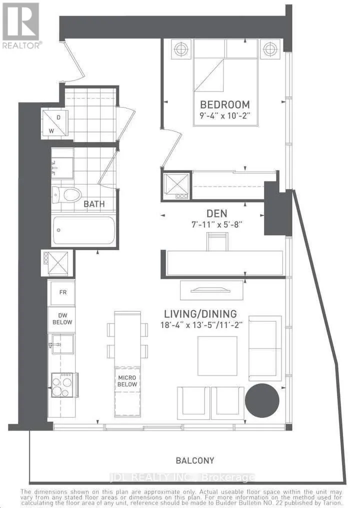
Bay St/Harbour St Welcome To The Iconic Harbour Plaza! South East-Facing Corner Unit, One Of The Best Layout In The Building. 612 Sqft 1+ Den Unit Features Floor To Ceiling Windows. Large Wrap Around Balcony. 9' Ft Ceilings, Open-Concept Living Area. Beautiful Island With Engineered Quartz Countertop. Exceptional Well Maintained! Great Amenities, Indoor Pool, Fitness Centre, Sauna, Party Room. Direct Indoor Access To P.A.T.H., Union Station, Down Town Core And Financial District. (id:27476)

Property Highlights

MLS® Number
C12796134
Type
Single Family
Community Name
Waterfront Communities C1
Ownership Type
Condominium/Strata

Building

Building Type
Apartment
Square Footage
600 - 699 sqft
Bathrooms Total
1
Bedrooms Above Ground
1
Bedrooms Total
2
Amenities
Security/Concierge, Exercise Centre, Party Room Public Transit
Exterior Finish
Concrete
Fireplace Present
No
Basement Type
None
Basement Features
Building Heating Type
Forced air
Heating Fuel
Natural gas
Building Cooling Type
Central air conditioning

Location

Learn more about this property
Listing provided by:
JDL REALTY INC.
MLS® number:
C12796134
Agent:
Iric Yang
*Indicates required field
Name is required
Email is required
Please enter a valid phone number (e.g., 416-111-1111).

Street Spotlight - For rent