3905 - 88 Harbour Street, Toronto, Ontario M5J 0C3

Listed for:
$2,400
1 beds
1 baths
Listed Today
Apartment for rent: 3905 - 88 Harbour Street, Toronto, Ontario M5J 0C3

View all 19 photos

About

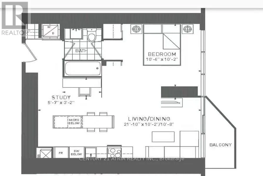
Cross Streets: HARBOUR ST & BAY ST. ** Directions: as per google map. Call this east facing 1 plus den in the sky @Harbour Plaza your home. 9 ft ceilings open concept w laminate flooring throughout. Entertainers kitchen w stainless steel, granite counters & custom backsplash. Master retreat f semi ensuite 4 pc bath & his and hers closets. Den is perfect for a home office. Unobstructed lake views on your private balcony. Ensuite laundry & locker included. (id:27476)

Property Highlights

MLS® Number
C12807414
Type
Single Family
Community Name
Waterfront Communities C1
Ownership Type
Condominium/Strata

Building

Building Type
Apartment
Square Footage
500 - 599 sqft
Bathrooms Total
1
Bedrooms Above Ground
1
Bedrooms Total
1
Amenities
Security/Concierge, Exercise Centre, Visitor Parking, Storage - Locker Park, Place of Worship, Public Transit
Exterior Finish
Concrete
Fireplace Present
No
Basement Type
None
Basement Features
Building Heating Type
Forced air
Heating Fuel
Electric
Building Cooling Type
Central air conditioning

Location

Learn more about this property
Listing provided by:
CENTURY 21 ATRIA REALTY INC.
MLS® number:
C12807414
Agent:
Darrell Christopher Chan
*Indicates required field
Name is required
Email is required
Please enter a valid phone number (e.g., 416-111-1111).

Street Spotlight - For rent