510 - 260 Sackville Street, Toronto, Ontario M5A 0B3

Listed for:
$3,550
3 beds
2 baths
Listed 4 days ago
Apartment for rent: 510 - 260 Sackville Street, Toronto, Ontario M5A 0B3

View all 31 photos

About

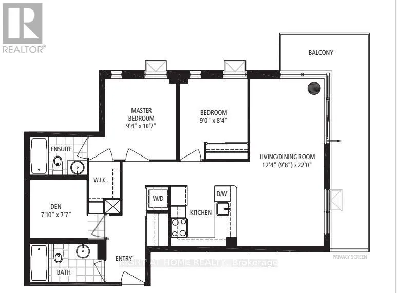
Cross Streets: Dundas St & Parliament. ** Directions: West of River Street. Bright & Spacious 2 Bedroom + Large Den (Easily a 3rd Bedroom, TV Room, or Home Office). Enjoy panoramic southeast views overlooking a beautiful park from your ~200 sq ft wraparound terrace-perfect for morning coffee or sunset lounging or gatherings. This sun-drenched suite features floor-to-ceiling windows, 9-ft ceilings, and a thoughtfully designed open-concept layout with generous living and dining space and a walkout to the terrace. The modern kitchen offers stainless steel appliances, granite countertops, and ample storage. You'll love the custom-built-in shelving in every closet, providing incredible storage throughout the unit. Stylish finishes include a sliding barn door that adds character and function. Residents enjoy access to a stunning rooftop terrace and premium amenities. Unbeatable location-steps to transit, groceries, restaurants, and quick highway access.This is city living with space, light, and views-don't miss it. (id:27476)

Property Highlights

MLS® Number
C12823806
Type
Single Family
Community Name
Regent Park
Ownership Type
Condominium/Strata
Parking Space Total
1

Building

Building Type
Apartment
Square Footage
1000 - 1199 sqft
Bathrooms Total
2
Bedrooms Above Ground
2
Bedrooms Total
3
Amenities
Security/Concierge, Recreation Centre, Exercise Centre, Party Room Park, Public Transit
Exterior Finish
Concrete
Fireplace Present
No
Basement Type
None
Basement Features
Building Heating Type
Forced air
Heating Fuel
Natural gas
Building Cooling Type
Central air conditioning

Location

Learn more about this property
Listing provided by:
RIGHT AT HOME REALTY
MLS® number:
C12823806
Agent:
Sabrina Ataullah-jan
*Indicates required field
Name is required
Email is required
Please enter a valid phone number (e.g., 416-111-1111).

Street Spotlight - For rent