1806 - 255 Village Green Square, Toronto, Ontario M1S 0L7

Listed for:
$469,000
2 beds
2 baths
Listed 54 days ago
Apartment for rent: 1806 - 255 Village Green Square, Toronto, Ontario M1S 0L7

View all 33 photos

About

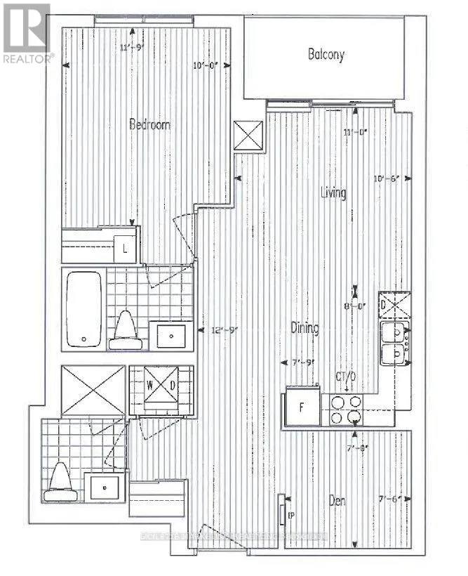
Kennedy Rd + Hwy 401 Welcome to Suite 1806 at 255 Village Green Square - a bright and functional 1+1 bedroom layout featuring a rarely offered 2 full washrooms and 1 parking space. This vacant unit offers fantastic unobstructed west-facing views, allowing for beautiful sunsets and plenty of natural light throughout. The semi-enclosed den provides excellent flexibility and can easily be used as a home office, guest space, nursery, or second bedroom depending on your needs. A well-designed layout maximizes both comfort and usability, making it ideal for end-users and investors alike. Move-in ready and located in a well-managed building with convenient access to transit, highways, shopping, and everyday amenities. (id:27476)

Property Highlights

MLS® Number
E12915740
Type
Single Family
Community Name
Agincourt South-Malvern West
Maintenance Fee
543.85
Ownership Type
Condominium/Strata
Parking Space Total
1

Building

Building Type
Apartment
Square Footage
600 - 699 sqft
Bathrooms Total
2
Bedrooms Above Ground
1
Bedrooms Total
2
Amenities
Security/Concierge, Exercise Centre, Recreation Centre, Party Room, Separate Electricity Meters Park, Place of Worship, Public Transit
Exterior Finish
Concrete
Fireplace Present
No
Basement Type
None
Basement Features
Building Heating Type
Forced air
Heating Fuel
Natural gas
Building Cooling Type
Central air conditioning

Location

Learn more about this property
Listing provided by:
SKYLETTE MARKETING REALTY INC.
MLS® number:
E12915740
Agent:
Joey Wong
*Indicates required field
Name is required
Email is required
Please enter a valid phone number (e.g., 416-111-1111).

Street Spotlight - For sale