409 - 2 Sonic Way, Toronto, Ontario M3C 0P2

Listed for:
$1,700
0 beds
1 baths
Listed 8 days ago
Apartment for rent: 409 - 2 Sonic Way, Toronto, Ontario M3C 0P2

View all 18 photos

About

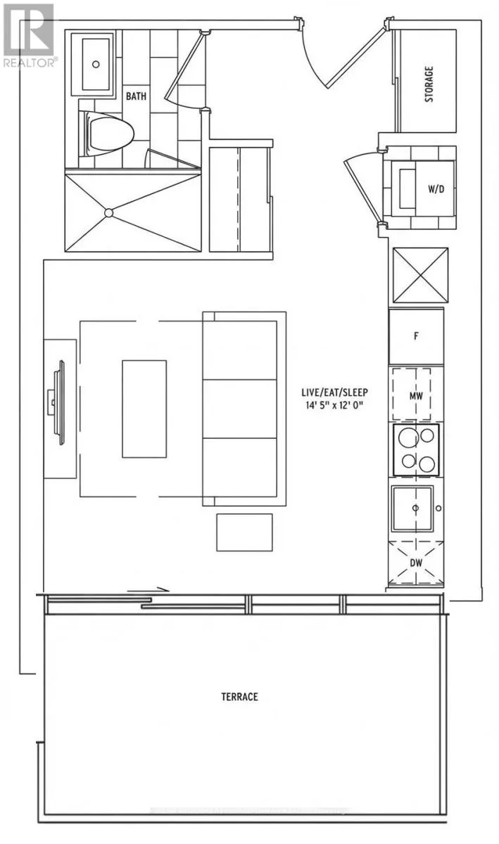
Eglinton Ave / Don Mills Rd Opportunity awaits with this stylish, move in ready studio offering a five star lifestyle. Fully furnished and set in a convenient and desirable Toronto neighbourhood, this bright open concept suite features floor to ceiling windows and a modern kitchen with stainless steel appliances. The living area walks out to a private terrace, perfect for relaxing or entertaining. Located close to the Eglinton Crosstown, Aga Khan Museum, shops, restaurants, and everyday amenities. This unit is furnished and includes an owned locker, south exposure, and June 1 possession. The building is 4 years old and offers amenities such as a gym, concierge, party room, visitor parking, recreation room, security system, and games room. Rent includes common elements, building insurance, and water. (id:27476)

Property Highlights

MLS® Number
C12978674
Type
Single Family
Community Name
Flemingdon Park
Ownership Type
Condominium/Strata

Building

Building Type
Apartment
Square Footage
0 - 499 sqft
Bathrooms Total
1
Amenities
Security/Concierge, Exercise Centre, Party Room, Recreation Centre, Visitor Parking, Storage - Locker Hospital, Place of Worship, Public Transit
Exterior Finish
Concrete
Fireplace Present
No
Basement Type
None
Basement Features
Building Heating Type
Forced air
Heating Fuel
Natural gas
Building Cooling Type
Central air conditioning

Location

Learn more about this property
Listing provided by:
KELLER WILLIAMS REFERRED URBAN REALTY
MLS® number:
C12978674
Agent:
Julie Rutherford
*Indicates required field
Name is required
Email is required
Please enter a valid phone number (e.g., 416-111-1111).

Street Spotlight - For rent