Unit 4 - 78 Gladstone Avenue, Toronto, Ontario M6J 3K8

Listed for:
$4,150
2 beds
2 baths
Listed 3 days ago
Other for rent: Unit 4 - 78 Gladstone Avenue, Toronto, Ontario M6J 3K8

View all 26 photos

About

Cross Streets: Queen and Dufferin. ** Directions: North of Queen, East of Dufferin. Welcome to the upper level of 980 sq. ft exceptionally bright, airy, spacious with great layout 2-bedroom, 2-bathroom apartment in the newly built multiplex. Located in one of the most vibrant and walkable neighborhoods in Toronto this unit offers a walking distance convenience to everything you need while offering a modern living and ample of functional space. This suite Is filled with Natural Light And Finished With High-End Touches Throughout including in floor heating system. The Spacious Living and Dining Areas Flow Seamlessly Into A Sleek Well-Appointed Kitchen with the gas stove and its private spacious terrace allowing for BBQ gatherings while enjoying the city view. The bedroom has a beautiful view of CN Tower adding.. Historic district offers the best - an international cuisine, cafe's, steps to major TTC transit arteries, galleries and shops. Perfect spot offering an unbeatable mix of culture and urban convenience. (id:27476)

Property Highlights

MLS® Number
C12993144
Type
Multi-family
Community Name
Little Portugal

Building

Building Type
Other
Storeys
2.50
Square Footage
700 - 1100 sqft
Bathrooms Total
2
Bedrooms Above Ground
2
Bedrooms Total
2
Exterior Finish
Brick
Fireplace Present
Yes
Basement Type
None
Basement Features
Building Heating Type
Other
Heating Fuel
Building Cooling Type
Central air conditioning

Utilities

Water
Municipal water
Utility Sewer
Sanitary sewer

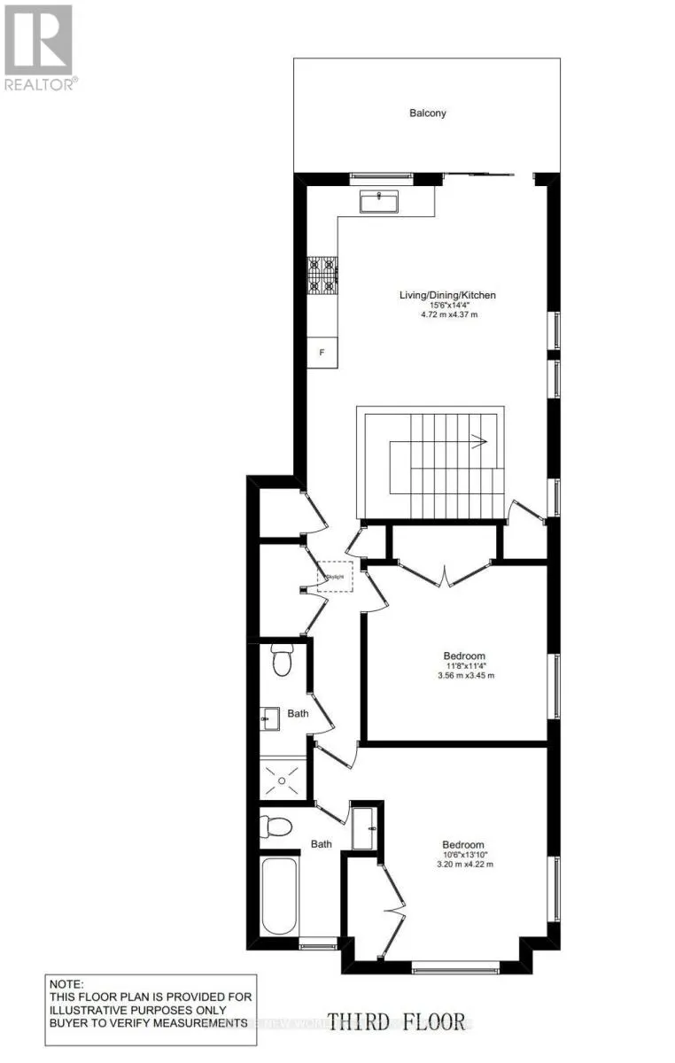
Room Layout

Living room
Upper Level
4.72 m x 4.4 m
Bedroom
Upper Level
3.2 m x 4.25 m
Bedroom 2
Upper Level
3.6 m x 3.5 m

Location

Learn more about this property
Listing provided by:
HOMELIFE NEW WORLD REALTY INC.
MLS® number:
C12993144
Agent:
Hanna Bondar
*Indicates required field
Name is required
Email is required
Please enter a valid phone number (e.g., 416-111-1111).

Street Spotlight - For rent