82 Fifth Street, Toronto, Ontario M8V 2Z3

Listed for:
$1,579,000
6 beds
5 baths
Listed 2 days ago
House for rent: 82 Fifth Street, Toronto, Ontario M8V 2Z3

View all 41 photos

About

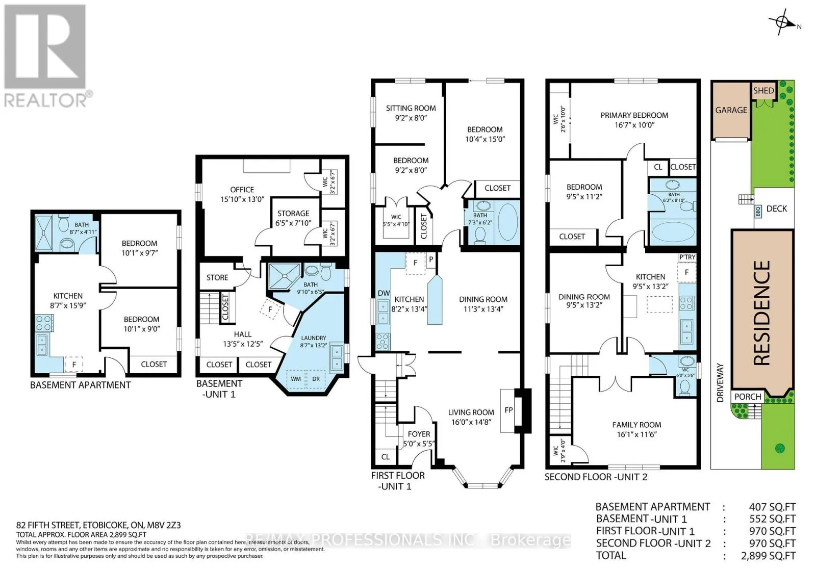
South of Lakeshore & Fifth St Welcome to 82 Fifth Street - Welcome to Life By the Lake! Massive Triplex with Private Drive, Tons of Parking and Detached Garage on One of New Toronto's Most Coveted Streets, South of Lakeshore! Steps to Lake, Shopping, Restaurants, Schools, Parks and Transit. Easy Access to Highways, Downtown and Airport. Home Offers Possibilities Galore: 2900 Square Feet of Finished Living Space Currently Set Up As 3 Self-Contained Units. Live In One Unit and Have Your Tenants Pay the Mortgage; Use As Multi-Generational Home; Convert Upper Levels into a Family Home with In-Law Suite or Income Generating Suite in the Basement; or Use Existing L-A-R-G-E Footprint and Renovate Into a Huge Single Family Home on this Friendly Street! Unit 1 Boasts High Ceilings, An Inviting Living Room Complete with Fireplace, Large Kitchen Overlooking Formal Dining Room, 2 Bedrooms (One with a Walk-Out to Gorgeous Backyard and Deck), 2 Bathrooms and A Below Grade Rec Room/Office That Could Be Used as a 3rd Bedroom. Tons of Storage. Unit 2 Also Has 2 Bedrooms and 2 Bathrooms, A Large, Eat-In Kitchen (With Skylight!), a Formal Dining Room (Could Be Used as 3rd Bedroom) and a Dedicated Living Room. A 2 Bedroom/1 Bathroom Basement Apartment with Separate Entrance Located at Rear of the Home. This Home Has Been Lovingly Owned and Maintained by the Same Family for More Than 4 Decades - and Is Awaiting Your Updates to Be Enjoyed for the Next 40 years! (id:27476)

Property Highlights

MLS® Number
W12997082
Type
Single Family
Community Name
New Toronto
Ownership Type
Freehold
Land Size
30 x 123 FT
Parking Space Total
6

Building

Building Type
House
Storeys
2.00
Square Footage
2000 - 2500 sqft
Bathrooms Total
5
Bedrooms Above Ground
4
Bedrooms Total
6
Amenities
Marina, Park, Public Transit, Schools
Exterior Finish
Brick
Fireplace Present
Yes
Basement Type
N/A
Basement Features
Apartment in basement
Building Heating Type
Forced air
Heating Fuel
Natural gas
Building Cooling Type
Central air conditioning

Utilities

Water
Municipal water
Utility Sewer
Sanitary sewer

Location

Learn more about this property
Listing provided by:
RE/MAX PROFESSIONALS INC.
MLS® number:
W12997082
Agent:
Ruslana A. Wrzesnewskyj
*Indicates required field
Name is required
Email is required
Please enter a valid phone number (e.g., 416-111-1111).

Community Spotlight: Homes For sale in Your Neighborhood