302 - 2720 Dundas Street W, Toronto, Ontario M6P 1Y2

Listed for:
$2,250
1 beds
1 baths
Listed 1 day ago
Apartment for rent: 302 - 2720 Dundas Street W, Toronto, Ontario M6P 1Y2

View all 24 photos

About

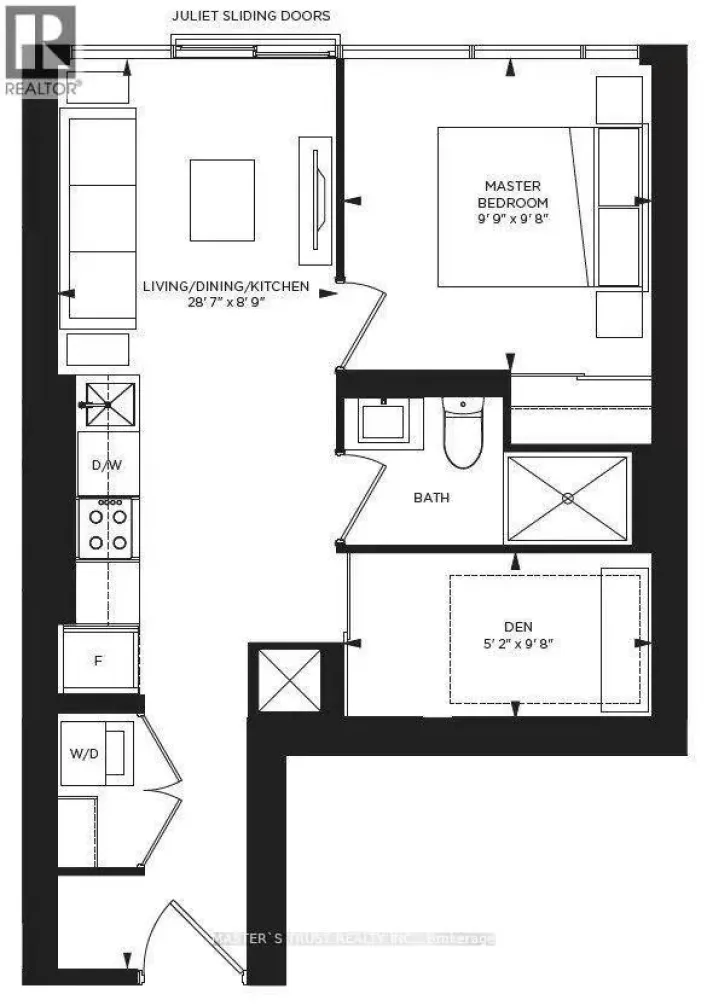
Dundas & Dupont Urban living in the heart of the Junction! Step inside Superkul's newest award winning project at the Junction House. This thoughtfully designed and spacious 675 SQFT one bedroom unit features exposed 9ft ceilings, floor to ceiling windows, contemporary materials and finishes for both entertaining & ease of living. South facing, open concept living + dining area is flooded with natural light. Well appointed scavolini kitchen includes integrated appliances, porcelain tile backsplash & gas cooktop. Spa-like bathroom boasts a scavolini vanity, porcelain tiles & large soaker tub. Premium white oak hardwood flooring throughout. Steps from the best restaurants, cafes, charming local shops, breweries, farmer's markets, transit & UP Express providing every convenience. The building includes a dynamic co-working/ social space, reliable concierge, well-equipped gym, yoga studio, visitor parking, 4000 sqft landscaped rooftop terrace with BBQs, cozy fire pits and stunning city skyline views. One storage locker included. Don't miss the opportunity to live in one of Toronto's most vibrant and sought after neighbourhoods. (id:27476)

Property Highlights

MLS® Number
W13002284
Type
Single Family
Community Name
Junction Area
Ownership Type
Condominium/Strata

Building

Building Type
Apartment
Square Footage
600 - 699 sqft
Bathrooms Total
1
Bedrooms Above Ground
1
Bedrooms Total
1
Amenities
Security/Concierge, Exercise Centre, Visitor Parking, Storage - Locker Public Transit, Park, Schools
Exterior Finish
Brick
Fireplace Present
No
Basement Type
None
Basement Features
Building Heating Type
Heat Pump
Heating Fuel
Electric
Building Cooling Type
Central air conditioning

Location

Learn more about this property
Listing provided by:
ROYAL LEPAGE REAL ESTATE SERVICES LTD.
MLS® number:
W13002284
Agent:
Alexa Corstorphine
*Indicates required field
Name is required
Email is required
Please enter a valid phone number (e.g., 416-111-1111).

Street Spotlight - For rent