3 - 196 Pine Grove Road, Vaughan, Ontario L4L 0H8

Listed for:
$806,000
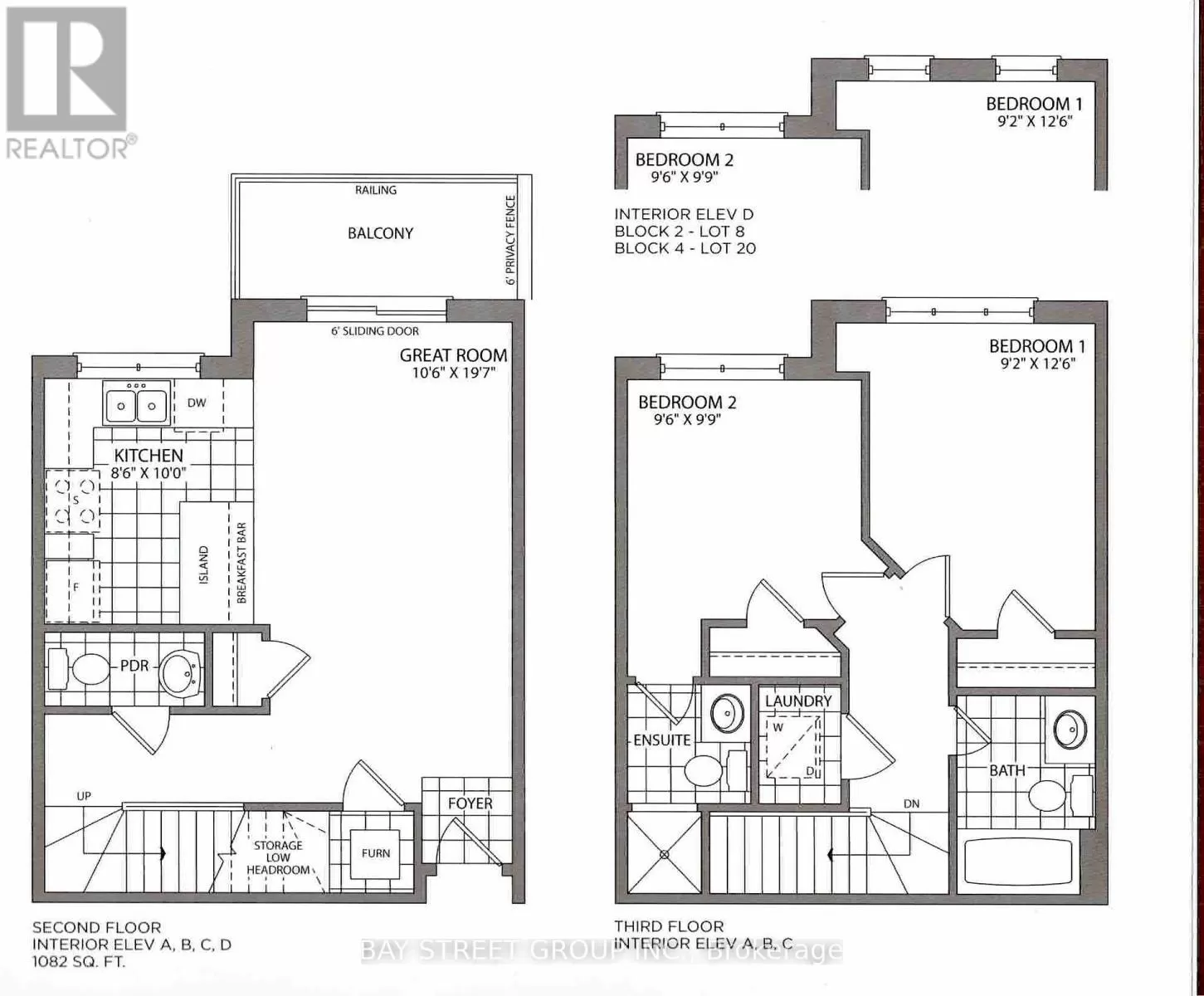
2 beds
3 baths
Listed 88 days ago
Row / Townhouse for rent: 3 - 196 Pine Grove Road, Vaughan, Ontario L4L 0H8

View all 26 photos

Learn more about this property
Listing provided by:
BAY STREET GROUP INC.
MLS® number:
N12356675
Agent:
Amanda Sun
*Indicates required field
Name is required
Email is required
Please enter a valid phone number (e.g., 416-111-1111).

About

Islington Rd & Langstaff Discover this well-maintained 2-bedroom, 3-bathroom stacked townhouse offering a perfect blend of style and functionality. The kitchen features sleek custom cabinetry, stainless steel appliances, and a built-in bar, ideal for entertaining or everyday living. Main bedroom boasts an upgraded 3-piece ensuite and custom closet organizers for optimal storage. Enjoy your east-facing balcony, perfect for morning coffee. Conveniently located just minutes from major highways, transit, shopping, dining, and morean excellent opportunity to join this highly sought-after community. (id:27476)

Property Highlights

MLS® Number
N12356675
Type
Single Family
Community Name
Islington Woods
Maintenance Fee
451.63
Ownership Type
Condominium/Strata
Parking Space Total
1

Building

Building Type
Row / Townhouse
Square Footage
1000 - 1199 sqft
Bathrooms Total
3
Bedrooms Above Ground
2
Bedrooms Total
2
Amenities
Storage - Locker
Exterior Finish
Brick
Fireplace Present
No
Basement Type
None
Basement Features
Building Heating Type
Forced air
Heating Fuel
Natural gas
Building Cooling Type
Central air conditioning

Location

Street Spotlight - For sale