6 - 12 Woodstream Boulevard, Vaughan, Ontario L4L 8C3

Listed for:
$1,399,800
0 beds
0 baths
Listed 96 days ago
6 - 12 Woodstream Boulevard, Vaughan, Ontario L4L 8C3

View all 31 photos

About

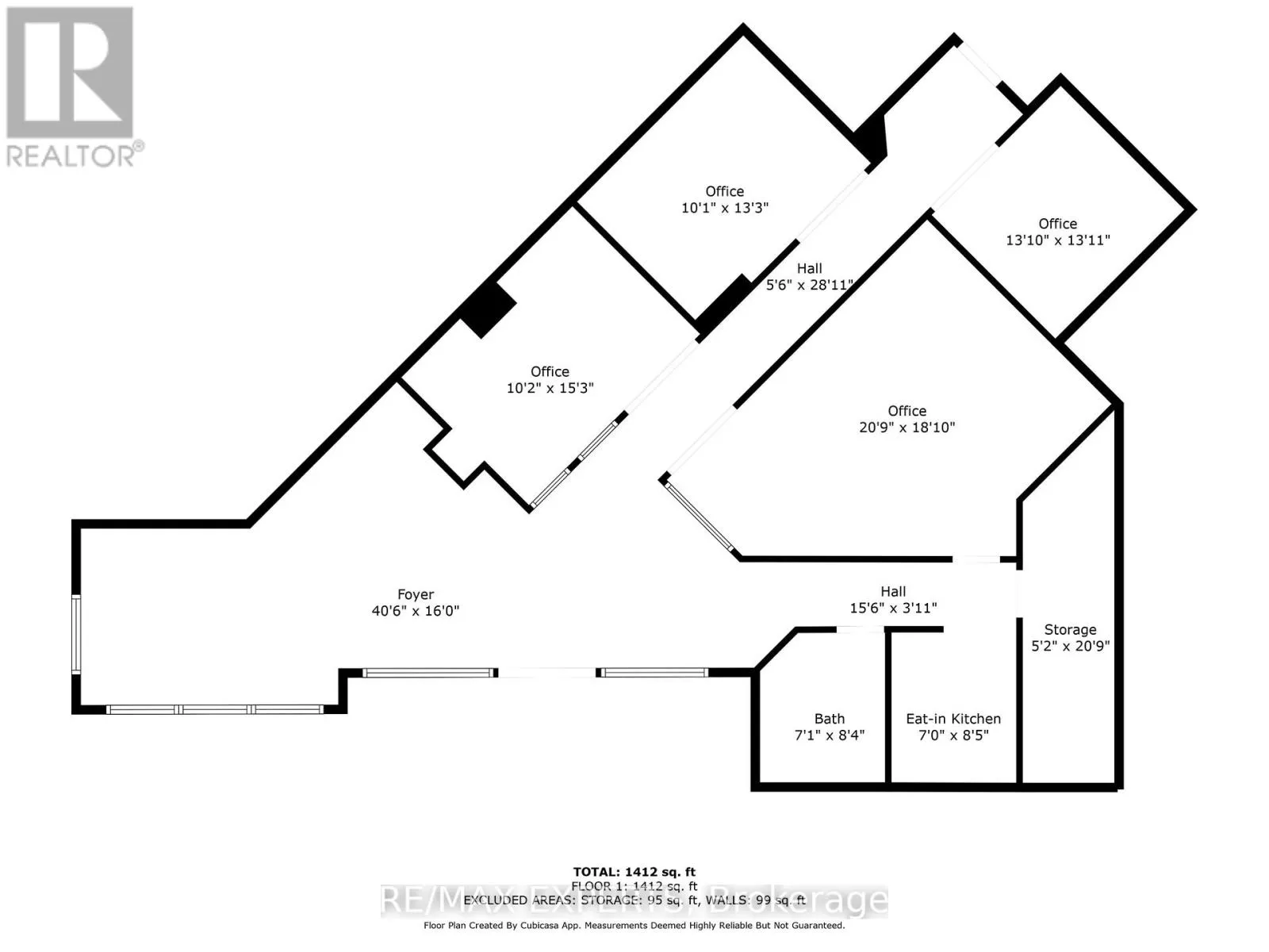
Martin Grove And Hwy 7 Location! Location! Location! Rare Opportunity To Purchase A Renovated Commercial Space On Hwy 7/Martin Grove Mins Away From Hwy 427. Conveniently Located On Street Level, Next Door To Retail Plaza With High Exposure To Hwy 7 And Public Transit Right In Front Of Building. This Property Is Strategically Located Underneath a 224- Unit Residential Building, Offering Maximum Visibility And High Foot Traffic. A Prime Location For Various Business Opportunities. Perfect For Retail And Other Commercial Uses. Lots Of Natural Light Through Large Windows Along With Spacious Kitchenette And Bathroom. Includes 2 parking spots and furniture. Perfect For Investment Or Personal Use. (id:27476)

Property Highlights

MLS® Number
N12418284
Type
Retail
Community Name
Vaughan Grove
Parking Space Total
2

Building

Square Footage
1580 sqft
Fireplace Present
No
Basement Type
Basement Features
Building Heating Type
Forced air
Heating Fuel
Natural gas
Building Cooling Type
Fully air conditioned

Utilities

Water
Municipal water
Utility Sewer
Sanitary sewer

Location

Learn more about this property
Listing provided by:
RE/MAX EXPERTS
MLS® number:
N12418284
Agent:
Vito Carnovale
*Indicates required field
Name is required
Email is required
Please enter a valid phone number (e.g., 416-111-1111).