701 - 2916 Highway 7, Vaughan, Ontario L4K 0K6

Listed for:
$499,000
1 beds
2 baths
Listed 34 days ago
Apartment for rent: 701 - 2916 Highway 7, Vaughan, Ontario L4K 0K6

View all 29 photos

Learn more about this property
Listing provided by:
RE/MAX IMPERIAL REALTY INC.
MLS® number:
N12462111
Agent:
Max Yao
*Indicates required field
Name is required
Email is required
Please enter a valid phone number (e.g., 416-111-1111).

About

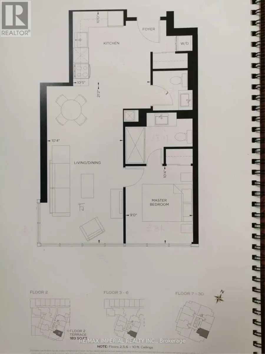
Cross Streets: Jane and Hwy 7. ** Directions: NE of Jane and Hwy 7. Spotless & bright 1-bedroom at Nord Condos in VMC! Features 9' ceilings, floor-to-ceiling windows, brand-new waterproof vinyl plank flooring, quartz counters, backsplash, and upgraded stainless steel appliances. Includes 1 parking & 1 locker. Top amenities: indoor pool, gym, concierge, party room & more. Steps to VMC Subway, Viva, hospital, York U, Costco. Quick access to Hwy 400/407/401/404. Ideal for end-users or investors! (id:27476)

Property Highlights

MLS® Number
N12462111
Type
Single Family
Community Name
Concord
Maintenance Fee
521.00
Ownership Type
Condominium/Strata
Parking Space Total
1

Building

Building Type
Apartment
Square Footage
600 - 699 sqft
Bathrooms Total
2
Bedrooms Above Ground
1
Bedrooms Total
1
Amenities
Security/Concierge, Exercise Centre, Visitor Parking, Storage - Locker Hospital, Park, Public Transit
Exterior Finish
Concrete
Fireplace Present
No
Basement Type
None
Basement Features
Building Heating Type
Forced air
Heating Fuel
Natural gas
Building Cooling Type
Central air conditioning

Location

Street Spotlight - For sale