36 Carrville Woods Circle, Vaughan, Ontario L6A 4Z6

Listed for:
$1,248,000
3 beds
4 baths
Listed 33 days ago
Row / Townhouse for rent: 36 Carrville Woods Circle, Vaughan, Ontario L6A 4Z6

View all 29 photos

Learn more about this property
Listing provided by:
RE/MAX IMPERIAL REALTY INC.
MLS® number:
N12464716
Agent:
Max Yao
*Indicates required field
Name is required
Email is required
Please enter a valid phone number (e.g., 416-111-1111).

About

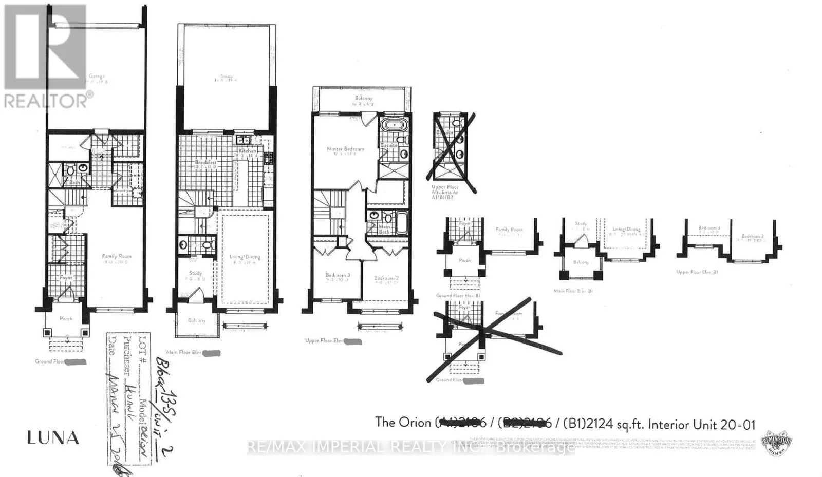
Cross Streets: Rutherford/Dufferin. ** Directions: NE of Rutherford/Dufferin. Modern & Luxurious 7-Year-New Freehold Townhome, 2,104 sq.ft., offers a double car garage driveway parking 2 cars. Enjoy 10' smooth ceilings on the main floor, 9' on both upper and lower levels, and hardwood flooring throughout.The lower level features a spacious family room or office that can easily be converted into a 4th bedroom.The kitchen is equipped with premium Bosch stainless steel appliances, a central island, and walkout from the breakfast area to massive 20' x 18' terrace. Main floor den with balcony access. The turning staircase offers a safer, less tiring, complemented by large windows that fill the home with natural light.The sun-filled primary suite includes a walk-in closet, private balcony, and a frameless glass shower in the elegant en-suite (id:27476)

Property Highlights

MLS® Number
N12464716
Type
Single Family
Community Name
Patterson
Ownership Type
Freehold
Land Size
19.8 x 91.1 FT
Parking Space Total
4

Building

Building Type
Row / Townhouse
Storeys
3.00
Square Footage
2000 - 2500 sqft
Bathrooms Total
4
Bedrooms Above Ground
3
Bedrooms Total
3
Amenities
Hospital, Park, Public Transit, Schools
Exterior Finish
Brick, Stucco
Fireplace Present
No
Basement Type
None
Basement Features
Building Heating Type
Forced air
Heating Fuel
Natural gas
Building Cooling Type
Central air conditioning

Utilities

Water
Municipal water
Utility Sewer
Sanitary sewer

Room Layout

Living room
Second level
5.55 m x 3.35 m
Study
Second level
2.44 m x 2.13 m
Kitchen
Second level
4.33 m x 2.44 m
Eating area
Second level
3.35 m x 3.22 m
Primary Bedroom
Third level
4.42 m x 3.81 m
Bedroom 2
Third level
3.66 m x 2.74 m
Bedroom 3
Third level
3.05 m x 2.84 m
Family room
Ground level
6.1 m x 3.35 m

Location