251 Thomas Cook Avenue, Vaughan, Ontario L6A 5A1

Listed for:
$1,249,000
5 beds
4 baths
Listed 64 days ago
Row / Townhouse for rent: 251 Thomas Cook Avenue, Vaughan, Ontario L6A 5A1

View all 50 photos

About

Cross Streets: Bathurst at Rutherford. ** Directions: North on Thomas Cook from Rutherford Rd. Experience elevated urban living in this beautifully appointed 4-bedroom luxury townhouse located in one of the city's most prestigious and affluent neighbourhoods. Ideally positioned in a vibrant, highly coveted community celebrated for its proximity to upscale shopping, fine dining, and top-tier schools, this home offers the perfect balance of energy and sophistication. Crafted with exceptional attention to detail, the exterior showcases timeless architecture enhanced by modern elements, soaring ceilings, expansive windows, elegant accents, and a thoughtfully designed layout that fills the home with natural light. A welcoming double staircase opens into a seamless open-concept living and dining area anchored by a chef-inspired kitchen complete with cabinetry, premium stone counter tops, high-end integrated appliances, a generous centre island, and a charming dining area - ideal for everyday living and refined entertaining. The four spacious bedrooms are designed for comfort and privacy, highlighted by a stunning primary retreat featuring vaulted ceilings, custom walk-in closets, and a spa-inspired en suite with a vanity, a deep soaker tub, and a frameless glass shower, complemented by three additional well-appointed bedrooms with abundant light and storage. Flexible living spaces include a private home office or study, an inviting media lounge or library, and a versatile recreation or fitness room. Outdoor areas feature beautifully finished terraces and balconies perfect for alfresco dining and relaxation. Additional premium features include a private garage, smart home technology for lighting, climate, and security and keyless entry. Wide-plank hardwood flooring, bespoke mill work, designer fixtures, and elegant quartz and marble finishes elevate every space, all while placing you steps from boutique retailers, artisan cafés, cultural destinations, exclusive clubs, and picturesque parks that define luxury living. (id:27476)

Property Highlights

MLS® Number
N12814828
Type
Single Family
Community Name
Patterson
Ownership Type
Freehold
Land Size
18.1 x 90.5 FT
Parking Space Total
2

Building

Building Type
Row / Townhouse
Storeys
3.00
Square Footage
2000 - 2500 sqft
Bathrooms Total
4
Bedrooms Above Ground
4
Bedrooms Total
5
Amenities
Fireplace(s) Hospital, Place of Worship, Public Transit
Exterior Finish
Stucco, Stone
Fireplace Present
Yes
Basement Type
N/A (Finished)
Basement Features
Building Heating Type
Forced air
Heating Fuel
Natural gas
Building Cooling Type
Central air conditioning, Ventilation system

Utilities

Water
Municipal water
Utility Sewer
Sanitary sewer

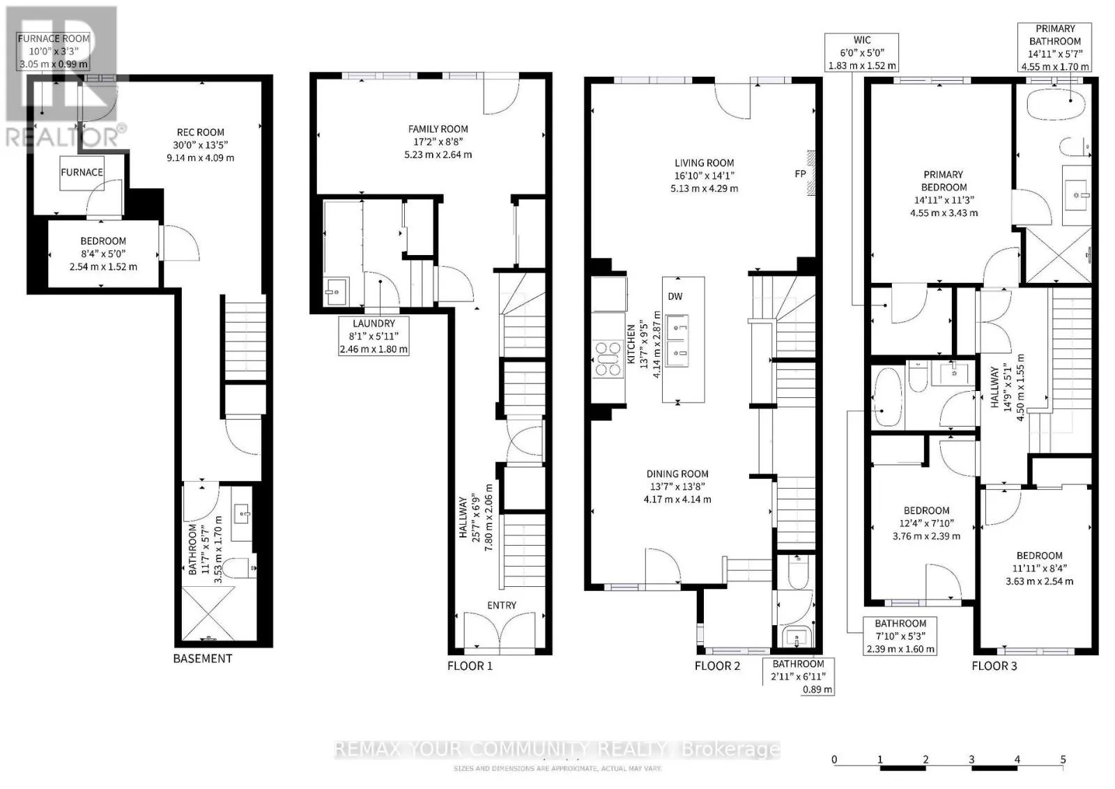
Room Layout

Living room
Second level
16.1 m x 14.1 m
Kitchen
Second level
13.7 m x 9.5 m
Dining room
Second level
13.7 m x 13.8 m
Primary Bedroom
Third level
14.11 m x 11.3 m
Bedroom 2
Third level
12.4 m x 7.1 m
Bedroom 3
Third level
11.11 m x 8.4 m
Bathroom
Third level
7.1 m x 5.35 m
Recreational, Games room
Basement
30 m x 13 m
Bathroom
Basement
11.7 m x 5.7 m
Utility room
Basement
8.4 m x 5 m
Bedroom 4
Flat
17.2 m x 8.8 m
Laundry room
Flat
8.1 m x 5.11 m

Location

Learn more about this property
Listing provided by:
REMAX YOUR COMMUNITY REALTY
MLS® number:
N12814828
Agent:
Patrick Alexander
*Indicates required field
Name is required
Email is required
Please enter a valid phone number (e.g., 416-111-1111).