10187 Lakeshore Road W, Wainfleet, Ontario L3K 5V4

Listed for:
$1,399,900
5 beds
4 baths
Listed 103 days ago
House for rent: 10187 Lakeshore Road W, Wainfleet, Ontario L3K 5V4

View all 47 photos

Learn more about this property
Listing provided by:
RE/MAX NIAGARA REALTY LTD, BROKERAGE
MLS® number:
X12430583
Agent:
Frank Ruzycki
*Indicates required field
Name is required
Email is required
Please enter a valid phone number (e.g., 416-111-1111).

About

Cross Streets: BTWN CEDAR CREST AND CAMELOT DR. ** Directions: HWY3 TO CEMENT ROAD TO LAKESHORE W. Camelot Hill Estate. Set on 1.2 acres of manicured grounds framed by mature trees, this custom-built Georgian Colonial offers over 3,700 square feet of timeless design and refined living space. Perched on a hillside overlooking winding Lakeshore Road West, this home has a dominant presence and is just outside of the lakeside town of Port Colborne.The columned entrance leads to a grand foyer that introduces a sweeping oak staircase and flows into formal living and dining rooms, each anchored by classic detailing. A main-floor office, sun-filled Florida room with French doors to the terrace, and a warm family room provide both formal and casual spaces. The kitchen, updated with new cabinets and flooring in 2022, blends tradition with modern function granite counters, high-end appliances, and an adjoining breakfast area overlooking the grounds.The upper level has 4-5 spacious bedrooms and 2.5 updated baths. Restored hardwood floors, two fireplaces, and an abundance of natural light reinforce the homes enduring character. The lower level is unfinished providing extra space for future finishing and expanding the living space of this grand home.Extensive updates include: new roof (2021), new windows and doors (2022), garage doors, lighting, and a new water system. A dedicated internet tower ensures reliable high-speed connectivity.The landscaped property is equally impressive with terraces, gardens, and a heated garden shed all creating spaces for gathering, relaxing or creating, while nearby lake access at Cedar Crest Road connects you to sandy Camelot Beach and the shoreline of Lake Erie.10187 Lakeshore Road is an unmatched, exceptional estate in a serene wooded setting and offers quick possession. (id:27476)

Property Highlights

MLS® Number
X12430583
Type
Single Family
Community Name
880 - Lakeshore
Ownership Type
Freehold
Land Size
358.4 x 294.6 FT|1/2 - 1.99 acres
Parking Space Total
8

Building

Building Type
House
Storeys
2.00
Square Footage
3500 - 5000 sqft
Bathrooms Total
4
Bedrooms Above Ground
4
Bedrooms Total
5
Amenities
Fireplace(s) Golf Nearby, Park, Schools, Beach
Exterior Finish
Cedar Siding, Shingles
Fireplace Present
Yes
Basement Type
N/A (Partially finished)
Basement Features
Building Heating Type
Forced air
Heating Fuel
Natural gas
Building Cooling Type
Central air conditioning

Utilities

Water
Drilled Well
Utility Sewer
Septic System

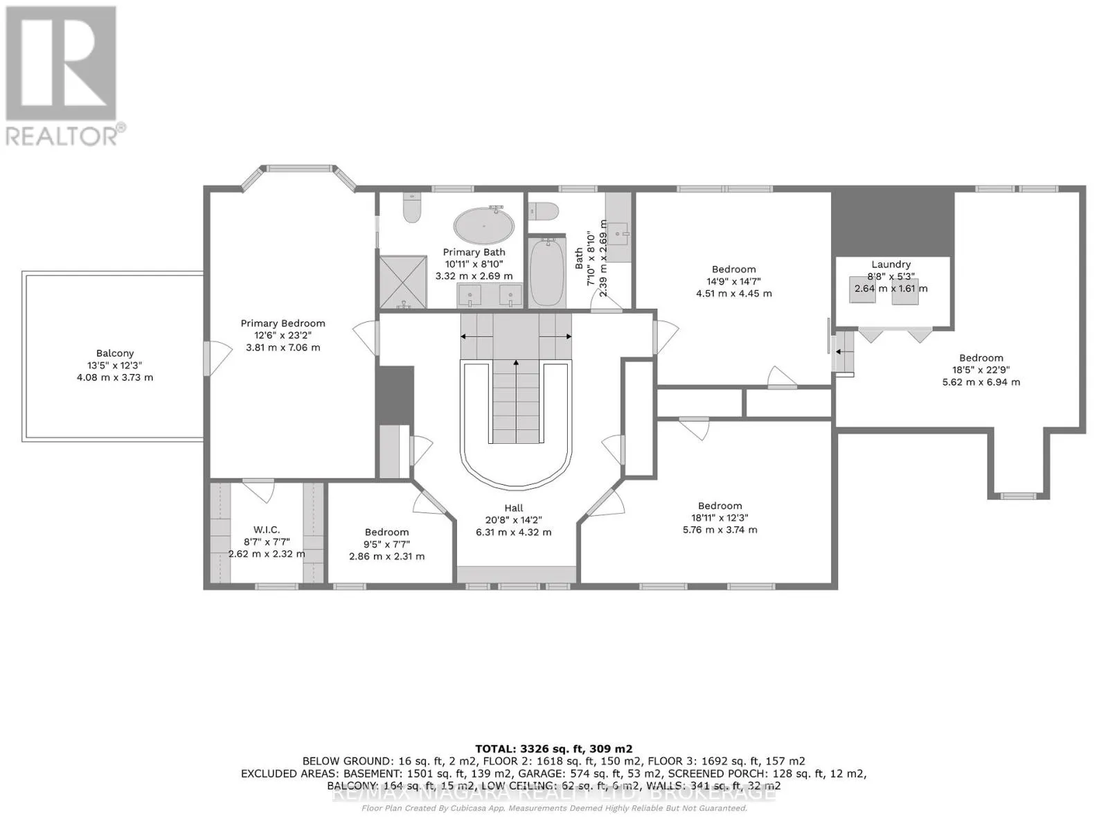
Room Layout

Bedroom 3
Second level
5.76 m x 3.74 m
Bedroom 4
Second level
5.62 m x 6.94 m
Laundry room
Second level
2.64 m x 1.61 m
Den
Second level
2.86 m x 2.31 m
Primary Bedroom
Second level
3.81 m x 7.06 m
Bedroom 2
Second level
4.51 m x 4.45 m
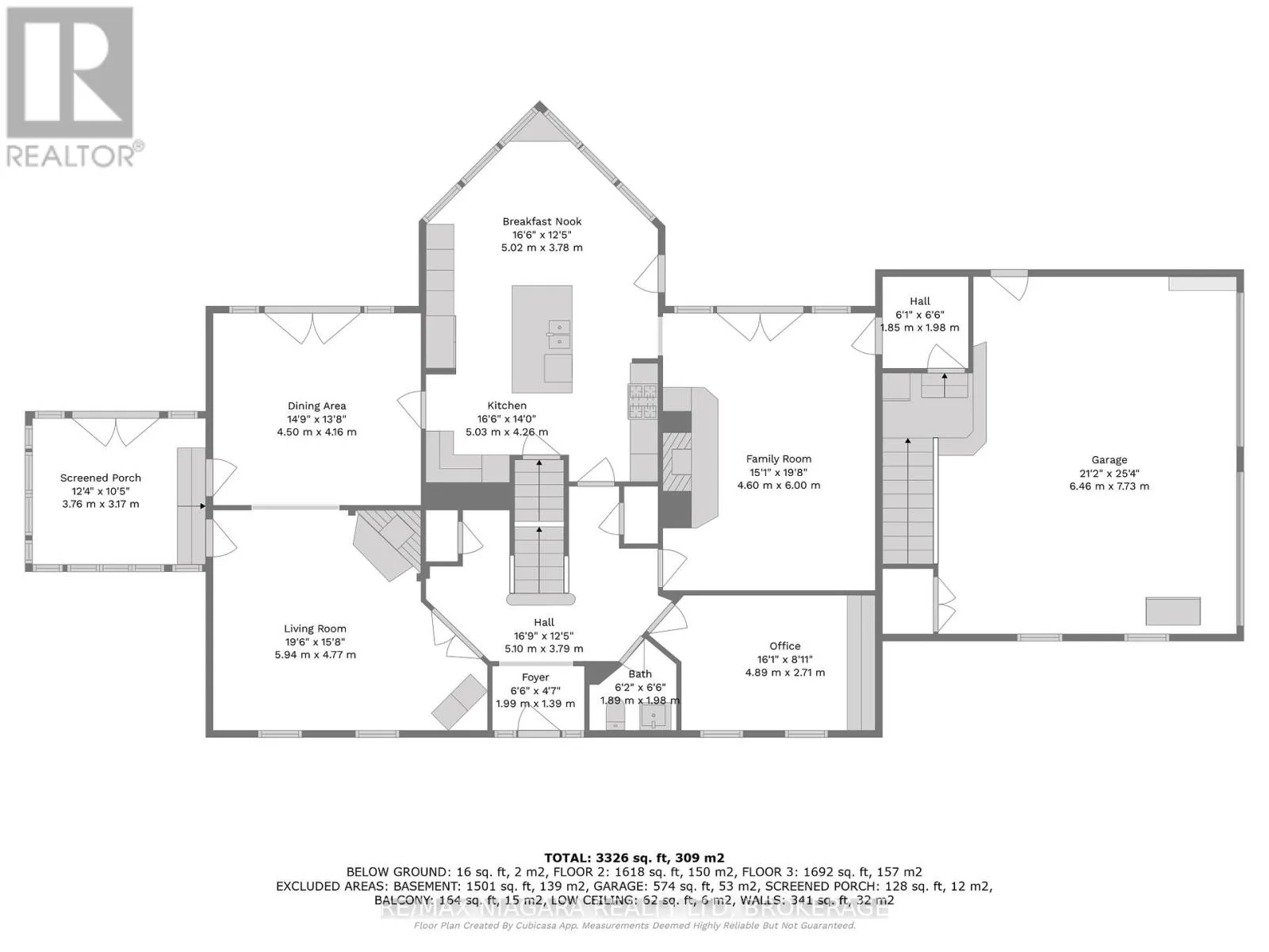
Utility room
Basement
16.3 m x 9.02 m
Foyer
Main level
5 m x 5.1 m
Living room
Main level
5.94 m x 4.77 m
Dining room
Main level
4.5 m x 4.16 m
Family room
Main level
4.6 m x 6 m
Kitchen
Main level
5.03 m x 4.26 m
Sunroom
Main level
3.76 m x 3.17 m
Office
Main level
4.89 m x 2.71 m

Location

Street Spotlight - For sale