9 Allen Drive N, Wasaga Beach, Ontario L9Z 1K5

Listed for:
$369,900
2 beds
2 baths
Listed 105 days ago
House for rent: 9 Allen Drive N, Wasaga Beach, Ontario L9Z 1K5

View all 46 photos

Learn more about this property
Listing provided by:
RE/MAX By The Bay Brokerage
MLS® number:
S12426181
Agent:
Brad Hammett
*Indicates required field
Name is required
Email is required
Please enter a valid phone number (e.g., 416-111-1111).

About

Cross Streets: Klondike Park Road to Watson, turn right to Sinclair Ave s turn left to Greenway turn left to Allen Drive North. ** Directions: Klondike Park Road to Watson. Wake up to the sounds of nature and enjoy the views from your bright sunroom as you drink your morning coffee. Play a round of golf at the onsite course and enjoy afternoon fun by the pool. That's what living is like here. Welcome to 9 Allan Drive. This home and community offer everything you could ask for! Located in Home Town community on a cul-d-sac. This home features its own enclosed studio/workshop area off of driveway, private yard, sheds with plenty of storage and plenty of parking. Inside this spacious and bright home you have a large kitchen, living room and dining area all great for entertaining family and friends. New flooring and paint throughout. 2 Bedrooms and 2 recently renovated bathrooms make this home a pleasure to be in. Enjoy golf, rec hall, outdoor pool all included when living here. Land Lease amount $725 per month and estimated monthly taxes site$35.49 home $82.07 (id:27476)

Property Highlights

MLS® Number
S12426181
Type
Single Family
Community Name
Wasaga Beach
Ownership Type
Freehold
Parking Space Total
2

Building

Building Type
House
Storeys
1.00
Square Footage
1100 - 1500 sqft
Bathrooms Total
2
Bedrooms Above Ground
2
Bedrooms Total
2
Amenities
Golf Nearby
Fireplace Present
No
Basement Type
Crawl space (Unfinished)
Basement Features
Building Heating Type
Forced air
Heating Fuel
Natural gas
Building Cooling Type
Central air conditioning

Utilities

Water
Municipal water
Utility Sewer
Sanitary sewer

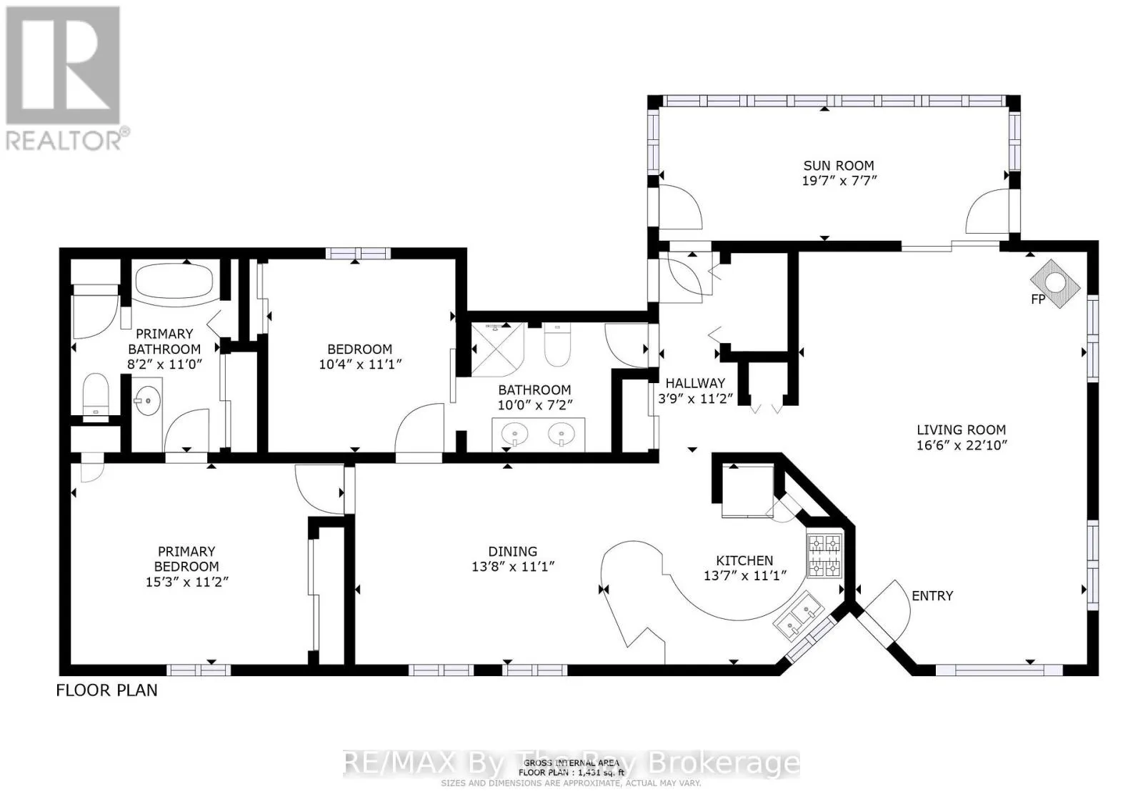
Room Layout

Living room
Main level
5.03 m x 6.96 m
Kitchen
Main level
4.14 m x 3.38 m
Dining room
Main level
4.17 m x 3.38 m
Primary Bedroom
Main level
4.65 m x 3.4 m
Bedroom
Main level
3.15 m x 3.38 m
Bathroom
Main level
3.048 m x 2.195 m
Sunroom
Main level
5.97 m x 2.31 m
Bathroom
Main level
2.49 m x 3.35 m

Location

Community Spotlight: Homes For sale in Your Neighborhood