463 Durham Road E, West Grey, Ontario N0G 1R0

Listed for:
$596,400
3 beds
3 baths
Listed 47 days ago
House for rent: 463 Durham Road E, West Grey, Ontario N0G 1R0

View all 41 photos

About

Cross Streets: Garafraxa Street N. ** Directions: From Garafraxa Street N head East onto Durham Road East. Past Kincardine St N & Starret Ln. Brand new semi-detached bungalow with walkout basement by Candue Homes! Backing onto mature trees this home is thoughtfully designed, blending modern finishes with a peaceful natural setting. The bright, open living room features a stylish shiplap fireplace and a walkout to the covered back deck, creating a seamless indoor-outdoor connection with tranquil treed views. The kitchen is finished with quartz countertops, a tile backsplash, and all appliances included.The primary bedroom has a walk-in closet with custom organizers and a beautifully finished ensuite bathroom featuring double sinks and a custom tiled shower. Practical touches include main-level laundry and an attached garage. The lower level expands your living space with a spacious recreation room and walkout to the backyard with a concrete patio. On this level you'll also find a 3rd bedroom & bathroom, plus ample storage, making it a great space for hosting guests. Outside, the builder includes a paved drive, fully sodded lot, and a fence along the east side of the back yard for added privacy. Cedar trees will be planted along the inside of the retaining wall at the back. * The listed price reflects the HST New Housing Rebate. If the property is not being purchased as a primary residence, or if the rebate program is not in effect at the closing date, the buyer will be required to pay the full 13% HST.* (id:27476)

Property Highlights

MLS® Number
X12787344
Type
Single Family
Community Name
West Grey
Ownership Type
Freehold
Land Size
31 x 164.8 FT
Parking Space Total
3

Building

Building Type
House
Storeys
1.00
Square Footage
1100 - 1500 sqft
Bathrooms Total
3
Bedrooms Above Ground
2
Bedrooms Total
3
Amenities
Fireplace(s) Hospital, Park, Place of Worship, Schools
Exterior Finish
Stone
Fireplace Present
Yes
Basement Type
N/A (Finished)
Basement Features
Walk out
Building Heating Type
Forced air
Heating Fuel
Natural gas
Building Cooling Type
Central air conditioning, Air exchanger

Utilities

Water
Municipal water
Utility Sewer
Sanitary sewer

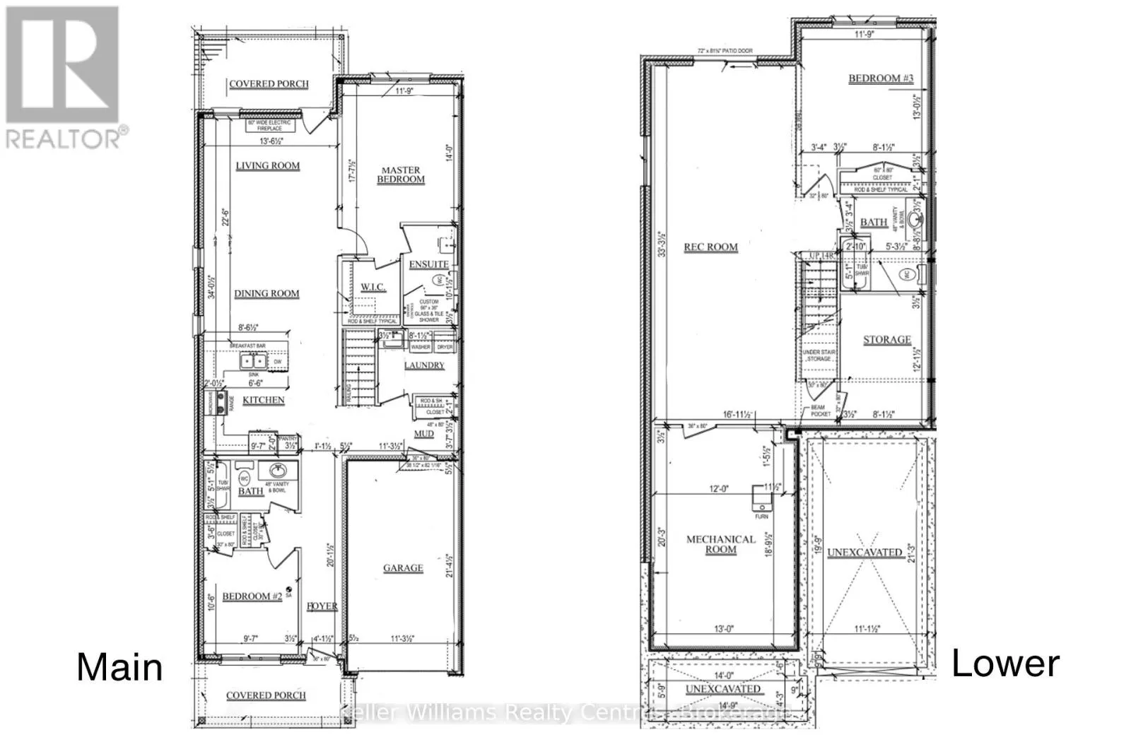
Room Layout

Recreational, Games room
Basement
10.1346 m x 4.0132 m
Bedroom 3
Basement
3.5814 m x 4.699 m
Utility room
Basement
3.9624 m x 6.1722 m
Utility room
Basement
2.4638 m x 3.683 m
Foyer
Main level
6.1214 m x 1.2446 m
Kitchen
Main level
3.4798 m x 4.1148 m
Living room
Main level
6.858 m x 4.1148 m
Bedroom
Main level
3.5814 m x 5.3594 m
Bedroom 2
Main level
2.921 m x 3.2004 m
Laundry room
Main level
2.4638 m x 2.286 m

Location

Learn more about this property
Listing provided by:
Keller Williams Realty Centres
MLS® number:
X12787344
Agent:
Livia Cassidy
*Indicates required field
Name is required
Email is required
Please enter a valid phone number (e.g., 416-111-1111).