033105 Grey Road 28 Road, West Grey, Ontario N4N 3B8

Listed for:
$1,150,000
4 beds
3 baths
Listed 6 days ago
House for rent: 033105 Grey Road 28 Road, West Grey, Ontario N4N 3B8

View all 48 photos

About

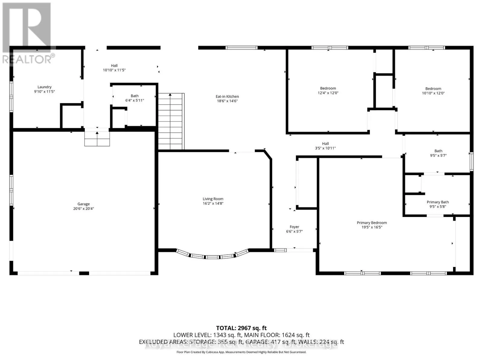
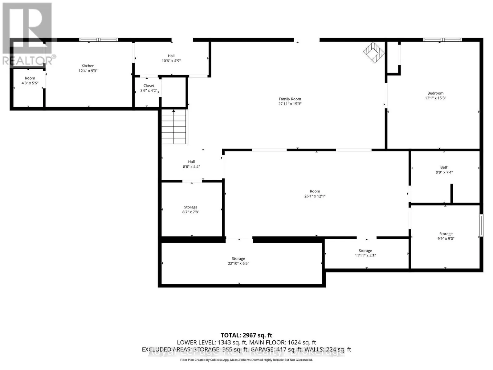
Cross Streets: Grey Road 28 and Con 2 SDR. ** Directions: South from Hanover on Grey Road 28 to fire number 033105 on east side. Rare opportunity to own a waterfront acreage just minutes from Hanover, offering a gorgeous natural setting with a lovely bungalow, 2 storage sheds and only moments to the convenience of town amenities. Located on a paved road with Wightman fibre optic internet, this property combines rural living with modern connectivity. The fully bricked 3+1 bedroom, 3 bathroom bungalow features a practical layout. The main floor offers an eat-in kitchen with solid wood Hanover Cabinetry, quartz countertops, and French doors leading to a large deck overlooking the forest and Beatty Saugeen River. The living room includes a picture window with views of the front covered porch, trees and gardens. There are three bedrooms, including an L-shaped primary, a private oasis with direct access to the four-piece bathroom with jacuzzi tub. A two-piece bathroom, laundry room, and attached double car garage complete the main level.The fully finished lower level includes a walk-out, living room with an airtight wood stove, family room with pocket French doors, a spacious bedroom, eat-in kitchen, three-piece bathroom, 3 storage rooms--ideal for guests or multigenerational living. Other features include two automatic garage door openers, updated windows (2016), high-efficiency furnace, central air (2010), water system (with RO water treatment, iron filter, water softener), recycled asphalt driveway, generator, full appliance package and two storage sheds.This acreage is a private playground--whether you are fishing or tubing in the summer, snowshoeing in the winter, relaxing at the river or at the campfire, watching wildlife or gardening, every season offers a new way to enjoy outdoor life. Conveniently located just minutes from Hanover's schools, hospital, and shopping, this waterfront property combines a peaceful rural setting with easy access to amenities. Spacious with main floor just over 1600sq ft, lower level 1343, above grade finished approx 2400 sq ft with walkout. (id:27476)

Property Highlights

MLS® Number
X13034292
Type
Single Family
Community Name
West Grey
Ownership Type
Freehold
Land Size
420 x 872 FT|5 - 9.99 acres
Parking Space Total
12

Building

Building Type
House
Storeys
1.00
Square Footage
2000 - 2500 sqft
Bathrooms Total
3
Bedrooms Above Ground
4
Bedrooms Total
4
Amenities
Fireplace(s)
Exterior Finish
Brick
Fireplace Present
Yes
Basement Type
N/A (Finished)
Basement Features
Walk out
Building Heating Type
Forced air, Heat Pump, Not known
Heating Fuel
Electric
Building Cooling Type
Central air conditioning

Utilities

Power
Generator
Utility Sewer
Septic System

Location

Learn more about this property
Listing provided by:
Royal LePage RCR Realty
MLS® number:
X13034292
Agent:
Angela Boersma
*Indicates required field
Name is required
Email is required
Please enter a valid phone number (e.g., 416-111-1111).

Community Spotlight: Homes For sale in Your Neighborhood