2 Longshore Way, Whitby, Ontario L1N 0M1

Listed for:
$868,000
4 beds
3 baths
Listed 58 days ago
Row / Townhouse for rent: 2 Longshore Way, Whitby, Ontario L1N 0M1

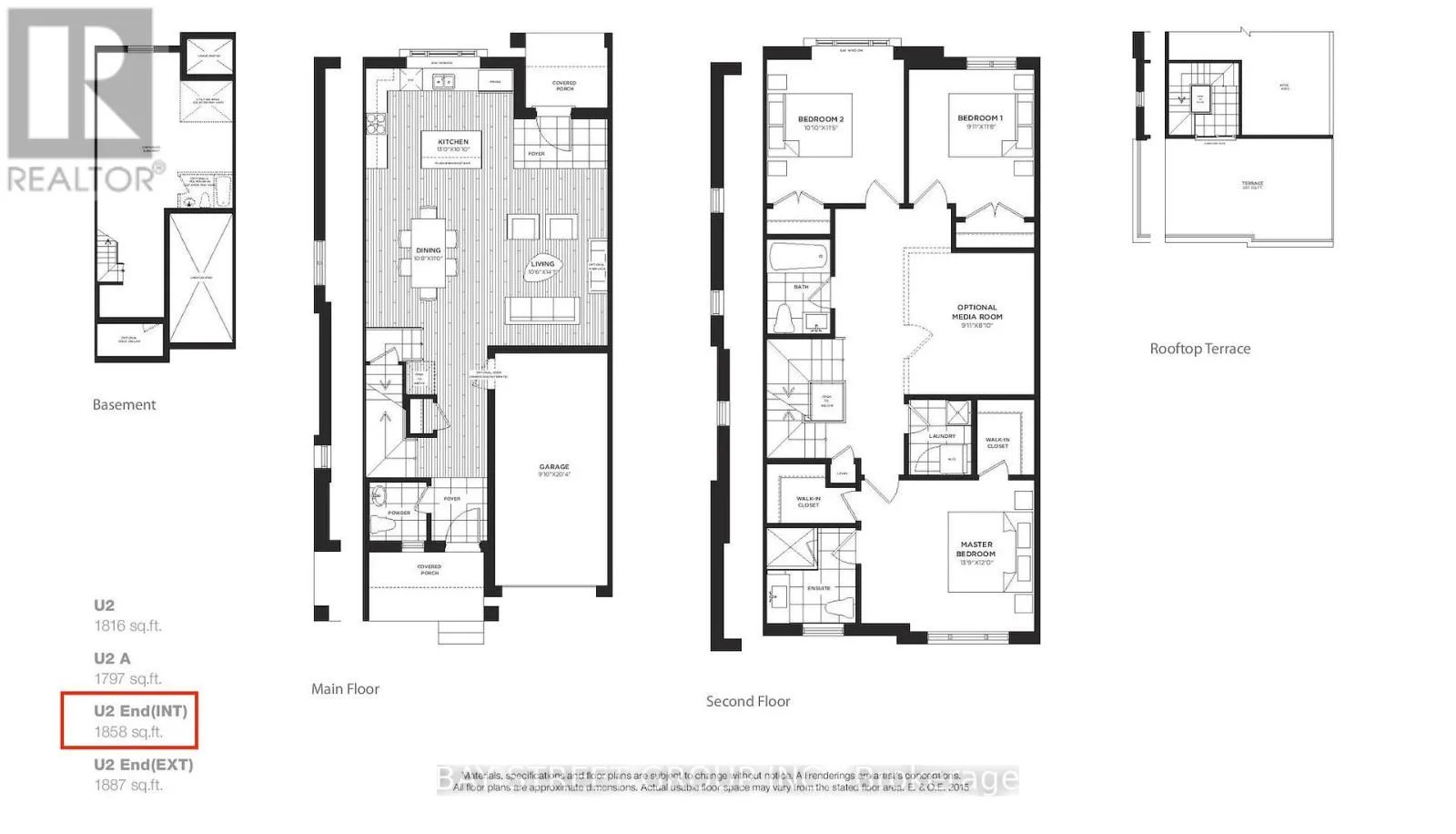
View all 22 photos

About

Gordon/Victoria Stunning Corner-Unit Urban Style Townhome Offering Over 1,800 Sq. Ft. Of Bright, Spacious Living In The Highly Sought-After Port Whitby Community, Ideally Located Between Tranquil Lynde Creek And Scenic Whitby Harbour. The Main Floor Features 9-Foot Ceilings, Elegant Hardwood Flooring, And A Sun-Filled Open-Concept Layout Perfect For Modern Living And Entertaining, With A Contemporary Kitchen Boasting Stainless Steel Appliances, Ample Cabinetry, And A Convenient Breakfast Bar That Seamlessly Flows Into The Dining And Living Areas. The Second Floor Offers Three Generously Sized Bedrooms And A Media Room, Including A Spacious Primary Retreat With A Luxurious 5-Piece Ensuite. Enjoy Breathtaking Rooftop Terrace Views Overlooking Lake Ontario, Perfect For Relaxing Or Hosting Guests. Prime Location Just Steps To The Waterfront Trail, Marina, Beaches, Restaurants, Entertainment, Parks, Schools, Hospital, Whitby Centrum, Lynde Shores, And Shopping Plaza With Metro, With Quick Access To Hwy 401, 412, And The GO Station For Easy Commuting-An Exceptional Opportunity Combining Style, Space, And Location. (id:27476)

Property Highlights

MLS® Number
E12903816
Type
Single Family
Community Name
Port Whitby
Maintenance Fee
225.00
Ownership Type
Freehold
Land Size
22.3 x 81.6 FT
Parking Space Total
2

Building

Building Type
Row / Townhouse
Storeys
2.00
Square Footage
1500 - 2000 sqft
Bathrooms Total
3
Bedrooms Above Ground
3
Bedrooms Total
4
Amenities
Separate Electricity Meters Park, Public Transit, Schools
Exterior Finish
Brick
Fireplace Present
Yes
Basement Type
N/A (Unfinished)
Basement Features
Building Heating Type
Forced air
Heating Fuel
Natural gas
Building Cooling Type
Central air conditioning

Utilities

Water
Municipal water
Utility Sewer
Sanitary sewer

Room Layout

Primary Bedroom
Second level
4.19 m x 3.67 m
Bedroom 2
Second level
3.48 m x 3.33 m
Bedroom 3
Second level
3.56 m x 3.02 m
Media
Second level
4.13 m x 3.19 m
Kitchen
Ground level
3.96 m x 3.3 m
Living room
Ground level
4.29 m x 3.2 m
Dining room
Ground level
3.35 m x 3.25 m

Location

Learn more about this property
Listing provided by:
BAY STREET GROUP INC.
MLS® number:
E12903816
Agent:
Jie Gu
*Indicates required field
Name is required
Email is required
Please enter a valid phone number (e.g., 416-111-1111).

Community Spotlight: Homes For sale in Your Neighborhood