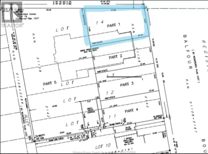
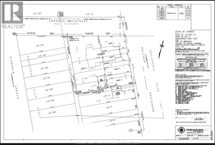
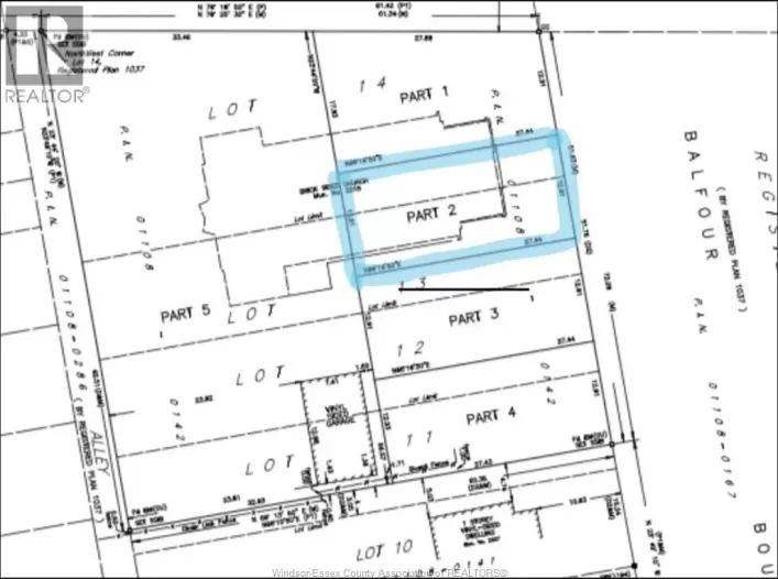
2003-2015 Balfour Boulevard, Windsor, Ontario N8T 2S6

Listed for:
$1,450,000
0 beds
0 baths
Listed 152 days ago
No Building for rent: 2003-2015 Balfour Boulevard, Windsor, Ontario N8T 2S6

View all 4 photos

About

VACANT RESIDENTIAL LAND PRIME OPPORTUNITY VACANT LAND AVAILABLE OFFERING FLEXIBILITY TO BUILD INVEST OR DEVELOP. BUYER RESPONSIBLE FOR PERFORMING DUE DILIGENCE AND VERIFYING ALL ZONING/BUILDING/SERVICES AND ANY OTHER REQUIREMENTS WITH THE CITY OF WINDSOR. (id:27476)

Property Highlights

MLS® Number
25023409
Type
Vacant Land
Ownership Type
Freehold
Land Size
169.8 FT X 256.54 FT

Building

Building Type
No Building
Amenities
Recreation Nearby
Fireplace Present
No
Basement Type
Basement Features
Building Heating Type
Heating Fuel
Building Cooling Type

Utilities

Utility Sewer
See remarks

Location

Learn more about this property
Listing provided by:
PINNACLE PLUS REALTY LTD.
MLS® number:
25023409
Agent:
Shannon Schepanowski
*Indicates required field
Name is required
Email is required
Please enter a valid phone number (e.g., 416-111-1111).

Street Spotlight - For sale