1320 Grand Marais Road East, Windsor, Ontario N8W 1W2

Listed for:
$1,495,000
9 beds
4 baths
Listed 8 days ago
House for rent: 1320 Grand Marais Road East, Windsor, Ontario N8W 1W2

View all 48 photos

Learn more about this property
Listing provided by:
REAL BROKER ONTARIO LTD
MLS® number:
25032019
Agent:
Saman Saif
*Indicates required field
Name is required
Email is required
Please enter a valid phone number (e.g., 416-111-1111).

About

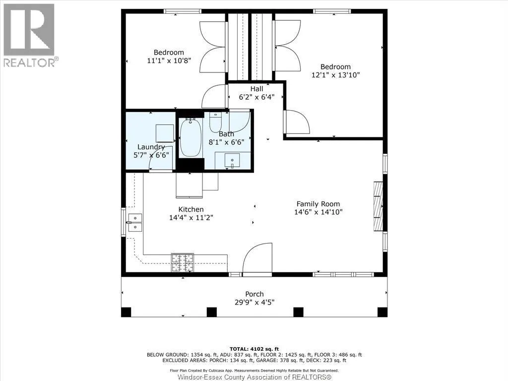
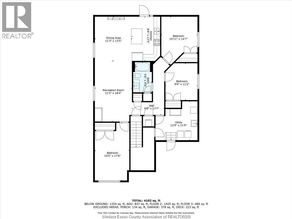
Exceptional property featuring 9 bedrooms, 4 bathrooms, and 4 kitchens, offering a rare blend of luxury living and strong income potential. This newly constructed home is thoughtfully designed to function either as a grand single-family residence or be easily configured into three self-contained units. Each unit offers separate entrances, private laundry, and dedicated living spaces, making it ideal for multi-generational living, extended families, or rental income. High-end finishes throughout include quartz countertops in all kitchens and bathrooms, 9-foot ceilings on every level, and abundant natural light. Suites feature walk-in closets, ensuite bathrooms, and pantries for added comfort and functionality. Situated on a deep lot spanning over 225 ft, the property provides generous outdoor space. A full-length driveway from front to back allows convenient side access for lower-level and ADU tenant parking. The standalone ADU is built to the same premium standards as the main home and includes its own storage shed. Potential cap rate of 6.5%+. An extensive media package is available to showcase this truly unique offering. 24 hours’ notice required. Call for additional details. (id:27476)

Property Highlights

MLS® Number
25032019
Type
Single Family
Ownership Type
Freehold
Land Size
45.6 X 226.19

Building

Building Type
House
Square Footage
2748 sqft
Bathrooms Total
4
Bedrooms Above Ground
6
Bedrooms Total
9
Exterior Finish
Brick, Concrete/Stucco
Fireplace Present
Yes
Basement Type
Basement Features
Building Heating Type
Forced air, Furnace
Heating Fuel
Natural gas
Building Cooling Type
Central air conditioning, Fully air conditioned

Location

Street Spotlight - For sale