424 Rankin Avenue, Windsor, Ontario N9B 2R7

Listed for:
$498,999
7 beds
3 baths
Listed 17 days ago
House for rent: 424 Rankin Avenue, Windsor, Ontario N9B 2R7

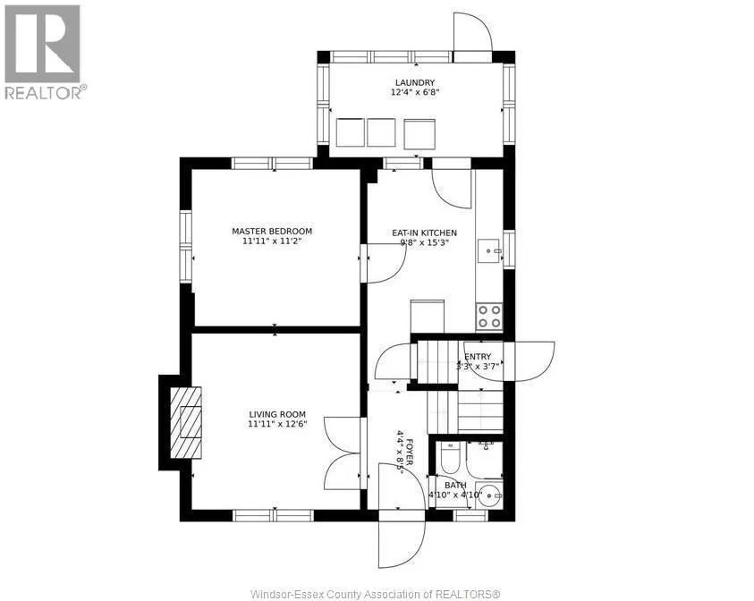
View all 15 photos

About

Strong cash-flowing student rental located steps from the University of Windsor, generating $3,500/month in rental income with existing tenancies in place. Purpose-built style layout featuring 2 kitchens and 3 full bathrooms, ideal for student housing and maximizing rental density. Functional multi-level setup with a separate side entrance and lower-level in-law suite configuration, providing flexibility for income optimization. Situated in a high-demand student rental pocket with consistent occupancy, ample on-street parking, and easy access to campus, transit, and amenities. Immediate income from day one in a proven rental location. Ideal addition to any student housing portfolio — contact listing agent for any questions or to book your private tour. 24 hours notice required for all showings. (id:27476)

Property Highlights

MLS® Number
26002154
Type
Single Family
Ownership Type
Freehold
Land Size
35.13 X 108.0 FT / 0.087 AC

Building

Building Type
House
Storeys
1.75
Bathrooms Total
3
Bedrooms Above Ground
5
Bedrooms Total
7
Exterior Finish
Brick
Fireplace Present
Yes
Basement Type
Basement Features
Building Heating Type
Forced air, Furnace
Heating Fuel
Natural gas
Building Cooling Type
Central air conditioning

Location

Learn more about this property
Listing provided by:
JUMP REALTY INC.
MLS® number:
26002154
Agent:
Mo El Kahil
*Indicates required field
Name is required
Email is required
Please enter a valid phone number (e.g., 416-111-1111).

Street Spotlight - For sale