805 Roselawn, Windsor, Ontario N9E 2B3

Listed for:
$589,000
4 beds
2 baths
Listed 8 days ago
House for rent: 805 Roselawn, Windsor, Ontario N9E 2B3

View all 27 photos

About

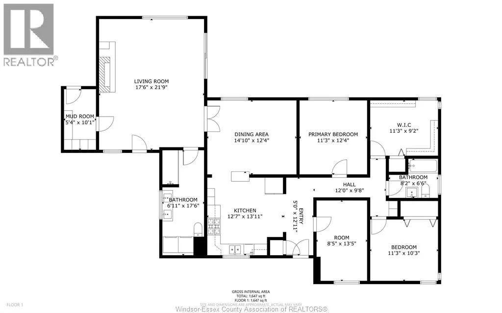
Fantastic South Windsor Location for this large Ranch on an oversized Corner Lot on one of the Premiere Streets in Windsor. It offers main floor family room with fireplace,4 bedrooms,2 full baths, main floor laundry, fenced yard with play area for kids and storage shed, attached garage, and a large accessible cemented crawl space, this home checks all the boxes for a great family home. This home has had extensive remodeling and improvements and is in move in condition. It is located in a great school district and close to all amenities Windsor has to offer. This home represents fantastic future and present value. Home is occupied by A great Tenant with a monthly rental rate of $2,700 per month PLus, so LTA applies 24 hours written notice for all showings. This is a great family home in a safe and secure area. (id:27476)

Property Highlights

MLS® Number
26007377
Type
Single Family
Ownership Type
Freehold
Land Size
112 X IRREG

Building

Building Type
House
Storeys
1.00
Bathrooms Total
2
Bedrooms Above Ground
4
Bedrooms Total
4
Exterior Finish
Aluminum/Vinyl
Fireplace Present
Yes
Basement Type
Basement Features
Building Heating Type
Forced air, Furnace
Heating Fuel
Natural gas
Building Cooling Type
Central air conditioning

Location

Learn more about this property
Listing provided by:
REMAX PREFERRED REALTY LTD. - 585
MLS® number:
26007377
Agent:
Daniel Bechard
*Indicates required field
Name is required
Email is required
Please enter a valid phone number (e.g., 416-111-1111).