50 Manitoba Street E, Moose Jaw, Saskatchewan S6H 0A2

Listed for:
$499,000
0 beds
0 baths
Listed 135 days ago
Warehouse for rent: 50 Manitoba Street E, Moose Jaw, Saskatchewan S6H 0A2

View all 34 photos

Learn more about this property
Listing provided by:
Global Direct Realty Inc.
MLS® number:
SK002253
Agent:
Teresa Thompson
*Indicates required field
Name is required
Email is required
Please enter a valid phone number (e.g., 416-111-1111).

About

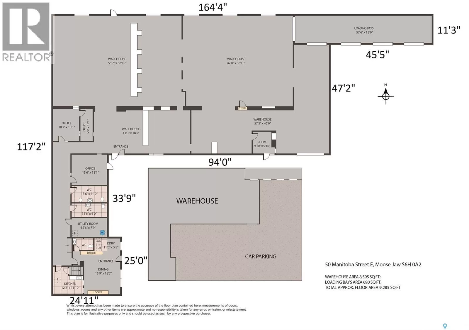
Welcome to an exceptional opportunity in downtown Moose Jaw! This expansive commercial warehouse boasts nearly 9,000 sq ft, providing a versatile space for your business needs. Conveniently located with easy access to the #1 highway, visibility is maximized for your enterprise. Featuring two offices, three bathrooms, a locker room, and a well-equipped kitchen space, this warehouse is designed to meet your operational requirements seamlessly. The practical layout includes three 9' overhead doors, perfectly suited for hauling trucks or semis, along with an additional 10' overhead door at the front of the building. Ample parking right in front ensures convenience for both staff and clients. Don't miss out on this prime location that combines functionality, accessibility, and prominence for your business success! ***All photos were taken during former tenant occupancy. Property is now vacant.*** (id:27476)

Property Highlights

MLS® Number
SK002253
Type
Industrial
Ownership Type
Freehold
Land Size
0.47 ac

Building

Building Type
Warehouse
Square Footage
8845 sqft
Fireplace Present
No
Basement Type
Basement Features
Building Heating Type
Furnace
Heating Fuel
Building Cooling Type

Location