215 Greenwich Drive Nw, Calgary, Alberta T3B 6N9

Listed for:
$765,000
3 beds
3 baths
Listed 72 days ago
Duplex for rent: 215 Greenwich Drive Nw, Calgary, Alberta T3B 6N9

View all 37 photos

About

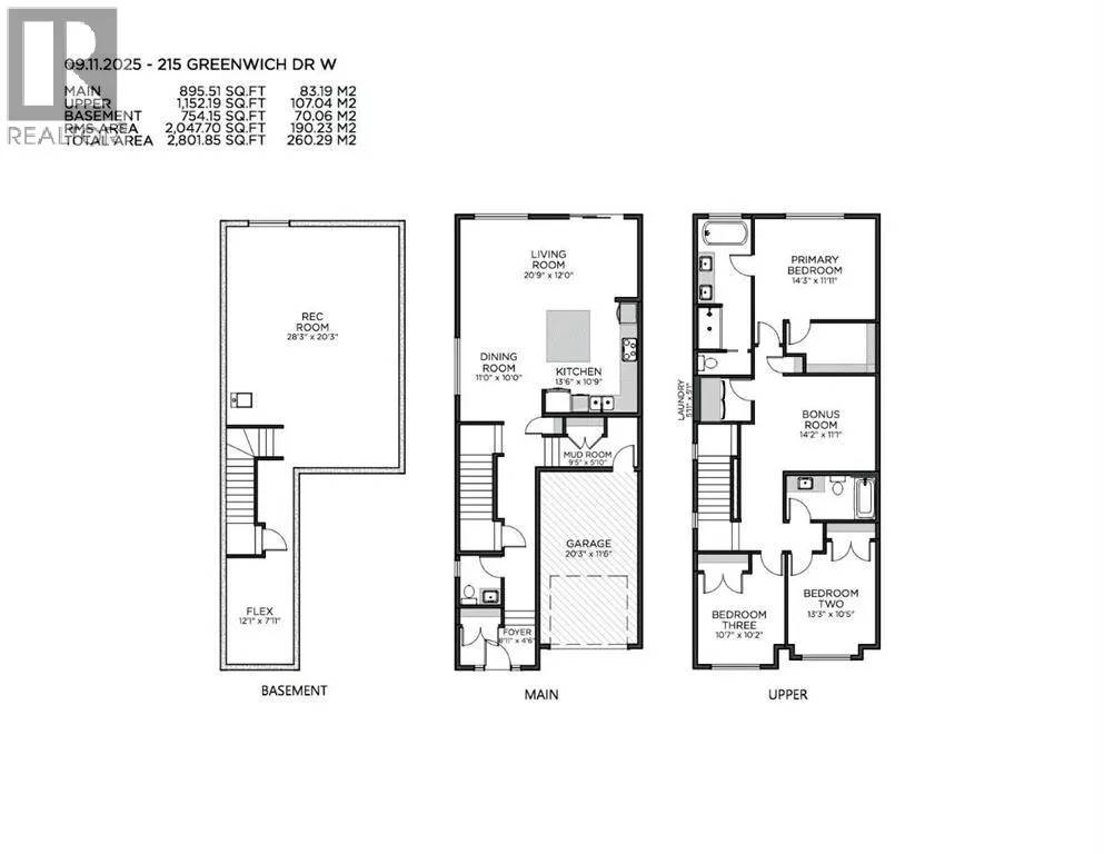
For those who work hard and play harder, this brand-new paired home in Upper Greenwich is the perfect blend of style, comfort, and convenience.Step inside and feel the calm wash over you – tall ceilings and wide-plank luxury flooring create a light, airy vibe. The chef-inspired kitchen is a showstopper with warm wood grain on the island, soft white cabinetry, quartz countertops, and a backsplash fittingly named White Brick Road. Whether you’re grabbing a quick breakfast before heading out the door or hosting friends on a night off, this space is made for real life. Upstairs, your primary suite is a private escape after long shifts. Soak away the stress of the day in the freestanding tub, or refresh under the frameless glass walk-in shower with tile surround and adjustable-height faucet. Dual sinks, a private water closet, and elegant finishes give it a spa-like feel. Two more bedrooms and a bonus room mean there’s space for guests, a Peloton corner, or a quiet reading nook. Your commute? 20 minutes to downtown Calgary. Your weekend? 45 minutes to the mountains. Walk to the Calgary Farmers’ Market for fresh ingredients, hit the pickleball courts, or follow the nearby paths to the Bow River for a run, paddle, or just a moment of stillness. Winsport and the Calgary Climbing Centre are practically in your backyard, keeping your active lifestyle within easy reach. This isn’t just a house – it’s a home designed for your pace, your goals, and your well-earned downtime. (id:27476)

Property Highlights

MLS® Number
A2277964
Type
Single Family
Community Name
Greenwood/Greenbriar
Ownership Type
Freehold
Land Size
287 m2|0-4,050 sqft
Parking Space Total
2

Building

Building Type
Duplex
Storeys
2.00
Square Footage
2048 sqft
Bathrooms Total
3
Bedrooms Above Ground
3
Bedrooms Total
3
Amenities
Park, Playground, Recreation Nearby, Shopping
Exterior Finish
Brick, Composite Siding
Fireplace Present
No
Basement Type
Full (Unfinished)
Basement Features
Building Heating Type
Forced air
Heating Fuel
Building Cooling Type
See Remarks

Location

Learn more about this property
Listing provided by:
Royal LePage Benchmark
MLS® number:
A2277964
Agent:
Julie C. Dempsey
*Indicates required field
Name is required
Email is required
Please enter a valid phone number (e.g., 416-111-1111).

Street Spotlight - For sale