1766 Pritchard Rd, Cowichan Bay, British Columbia V0R 1N1

Listed for:
$1,039,900
6 beds
2 baths
Listed 47 days ago
House for rent: 1766 Pritchard Rd, Cowichan Bay, British Columbia V0R 1N1

View all 46 photos

About

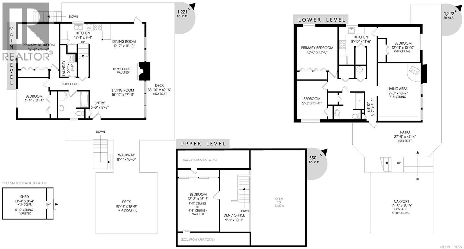
Welcome to this exceptional 6-bedroom, 2-bathroom home offering breathtaking panoramic ocean views in the heart of Cowichan Bay. With 17-ft high vaulted ceilings in the living and dining rooms, the main living space is filled with natural light and showcases the stunning scenery from every angle. This versatile property features a 3-bedroom, 1-bath in-law suite—perfect for family or as a mortgage helper with strong income potential. The spacious layout provides comfort and flexibility for a variety of living arrangements. Step outside to a large deck ideal for BBQs and entertaining while soaking in the incredible views. Set on a private 0.52-acre lot ultra-private yard surrounded by natural beauty. Highlights include a newer roof, ample parking, and a prime location just minutes from the charming shops, restaurants, and waterfront of Cowichan Bay. A rare opportunity to own a stunning ocean view home with income potential in one of the Cowichan Valley’s most desirable communities. (id:27476)

Property Highlights

MLS® Number
1030727
Type
Single Family
Ownership Type
Freehold
Land Size
0.52 ac
Parking Space Total
4

Building

Building Type
House
Square Footage
2993 sqft
Bathrooms Total
2
Bedrooms Total
6
Fireplace Present
Yes
Basement Type
Basement Features
Building Heating Type
Heating Fuel
Electric
Building Cooling Type
None

Location

Learn more about this property
Listing provided by:
RE/MAX Island Properties (DU)
MLS® number:
1030727
Agent:
Brittany Pickard
*Indicates required field
Name is required
Email is required
Please enter a valid phone number (e.g., 416-111-1111).