1837 Shuswap Avenue Lot# 4, Lumby, British Columbia V0E 2G0

Listed for:
$396,000
0 beds
0 baths
Listed 25 days ago
Other for rent: 1837 Shuswap Avenue Lot# 4, Lumby, British Columbia V0E 2G0

View all 15 photos

About

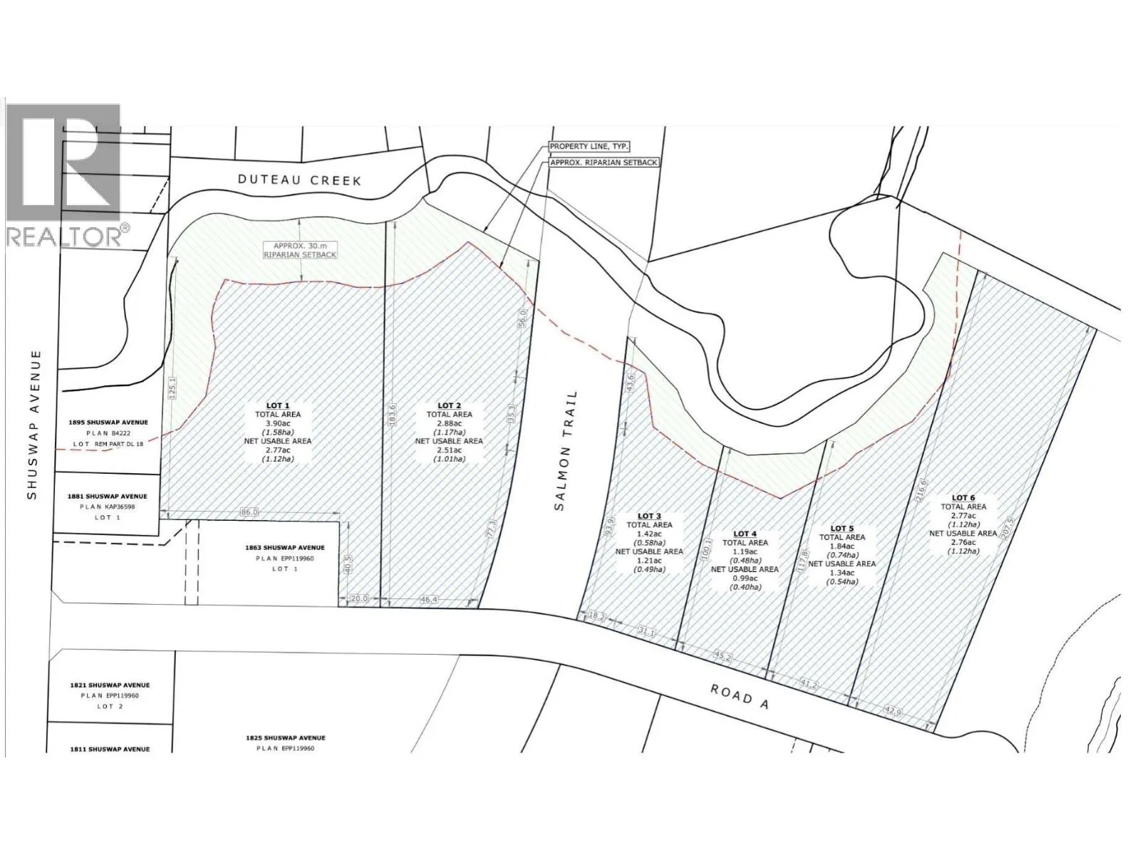
Lot 4 at Monashee Light Industrial Park offers 1.19 acres (approx. 0.99 acres net usable) of fully serviced I2 General Industrial land within Lumby’s growing industrial corridor. This efficiently sized parcel is ideally suited for trades, contractor services, small-scale manufacturing, warehousing, or service industrial users seeking manageable footprint requirements with functional yard capability. Subdivision approval is complete, with servicing and internal road infrastructure underway. Municipal water and sewer will be delivered to the lot, along with full underground utilities. Estimated service completion is April 2026. The level site configuration supports straightforward construction, cost-efficient development, and practical truck access. Zoned I2 – General Industrial, permitting a broad range of industrial and service commercial uses including contractor shops, fabrication, distribution, equipment storage, and related operations. Strategically located minutes from Highway 6, providing direct access to Vernon (approx. 25 minutes), Kelowna, and regional transportation routes. As serviced industrial land supply tightens throughout the North Okanagan, Lumby offers a compelling alternative with municipal services, strong connectivity, and competitive land values. An excellent opportunity for owner-users or investors seeking a right-sized industrial parcel in an emerging growth node. (id:27476)

Property Highlights

MLS® Number
10377297
Type
Vacant Land
Ownership Type
Freehold
Land Size
1.19 ac|1 - 5 acres

Building

Building Type
Other
Fireplace Present
No
Basement Type
Basement Features
Building Heating Type
Heating Fuel
Building Cooling Type

Utilities

Water
Municipal water
Utility Sewer
Municipal sewage system

Location

Learn more about this property
Listing provided by:
RE/MAX Vernon
MLS® number:
10377297
Agent:
Don Kassa
*Indicates required field
Name is required
Email is required
Please enter a valid phone number (e.g., 416-111-1111).

Street Spotlight - For sale