1837 Shuswap Avenue Lot# 5, Lumby, British Columbia V0E 2G0

Listed for:
$536,000
0 beds
0 baths
Listed 25 days ago
Other for rent: 1837 Shuswap Avenue Lot# 5, Lumby, British Columbia V0E 2G0

View all 15 photos

About

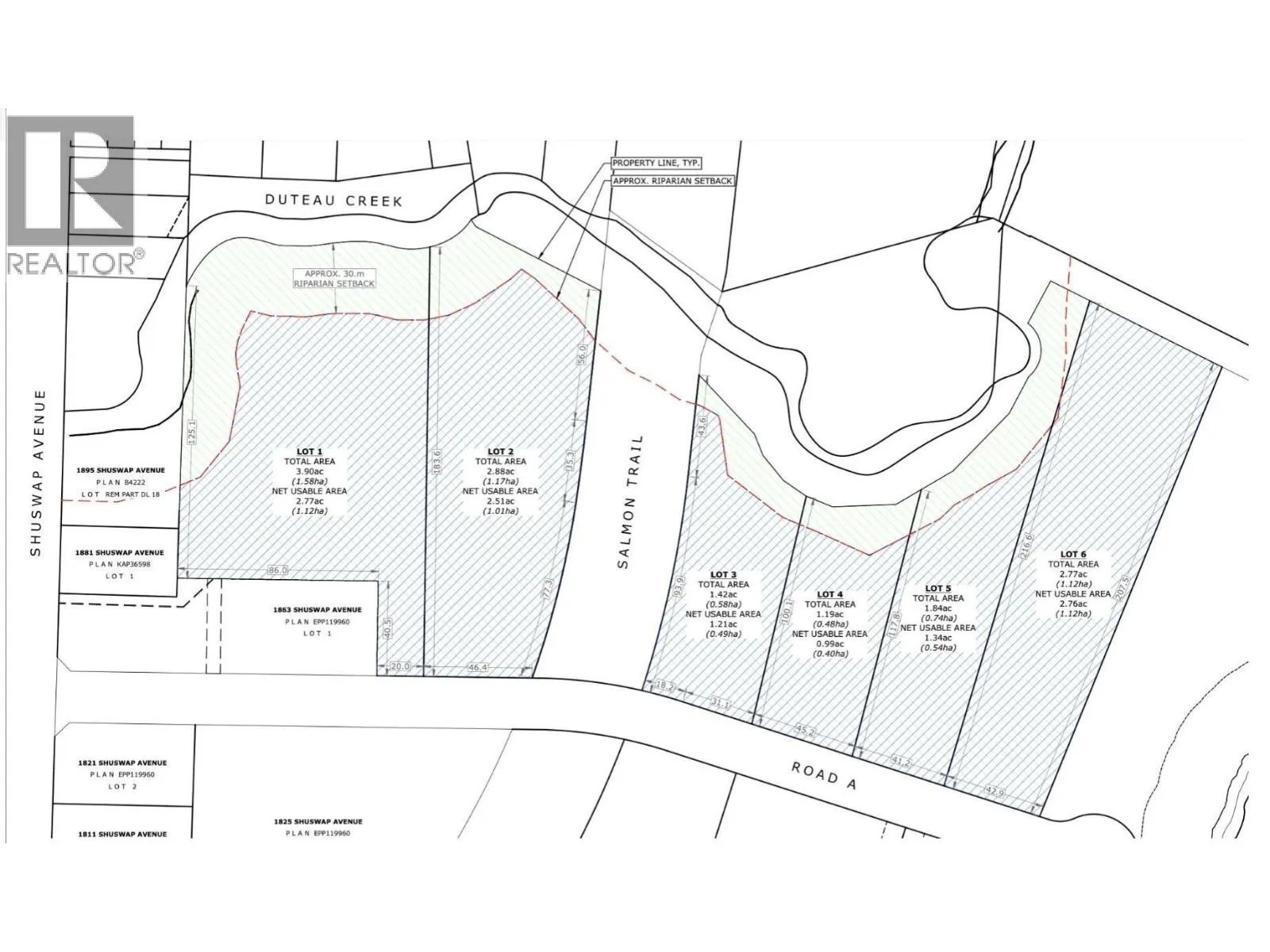
Lot 5 at Monashee Light Industrial Park offers 1.84 acres (approx. 1.34 acres net usable) of fully serviced I2 General Industrial land within Lumby’s established and expanding industrial corridor. This well-balanced parcel provides excellent flexibility for building footprint, yard space, and operational flow, making it well suited for warehousing, light manufacturing, fabrication, contractor operations, or distribution uses. Subdivision approval is complete, with servicing and internal road infrastructure underway. Municipal water and sewer will be provided to the lot, along with full underground utilities. Estimated completion of services is April 2026. The level topography supports efficient site planning, straightforward construction, and practical truck maneuverability. Zoned I2 – General Industrial, permitting a broad range of industrial and service commercial uses including equipment storage, trades facilities, processing operations, and scalable industrial development. Located minutes from Highway 6, offering direct regional connectivity to Vernon, Kelowna, and major Okanagan transportation routes. As serviced industrial land availability continues to tighten throughout the North Okanagan, Lumby presents a strategic and cost-effective alternative with strong long-term growth fundamentals. An excellent opportunity for owner-users, developers, or investors seeking scalable industrial land within one of the region’s emerging industrial growth areas. (id:27476)

Property Highlights

MLS® Number
10377298
Type
Vacant Land
Ownership Type
Freehold
Land Size
1.84 ac|1 - 5 acres

Building

Building Type
Other
Fireplace Present
No
Basement Type
Basement Features
Building Heating Type
Heating Fuel
Building Cooling Type

Utilities

Water
Municipal water
Utility Sewer
Municipal sewage system

Location

Learn more about this property
Listing provided by:
RE/MAX Vernon
MLS® number:
10377298
Agent:
Don Kassa
*Indicates required field
Name is required
Email is required
Please enter a valid phone number (e.g., 416-111-1111).

Street Spotlight - For sale