1837 Shuswap Avenue Unit# Lot 2/3/4/5/6, Lumby, British Columbia V0E 2G0

Listed for:
$3,508,000
0 beds
0 baths
Listed 27 days ago
Other for rent: 1837 Shuswap Avenue Unit# Lot 2/3/4/5/6, Lumby, British Columbia V0E 2G0

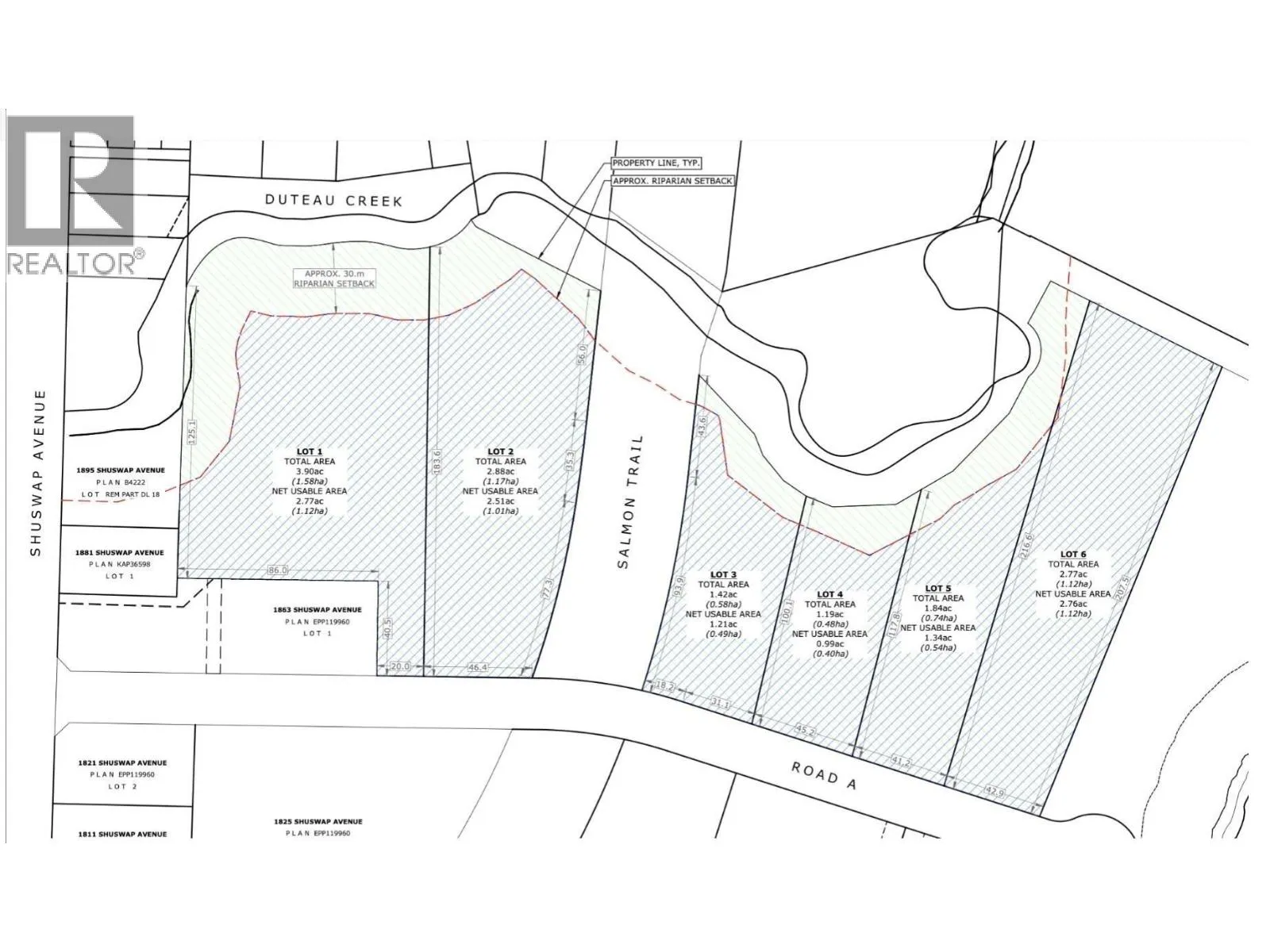
View all 15 photos

About

Monashee Light Industrial Park presents a rare opportunity to secure fully serviced I2 General Industrial land within Lumby’s established industrial corridor. With subdivision approval complete and servicing underway, these lots are designed for modern industrial development, owner-users, and long-term investors seeking scalable industrial land in the North Okanagan. Lots range from approximately .99 - 2.72 net useable acres due to riparian set backs, with optimized net usable areas to support efficient building footprints, yard space, and operational flexibility. Municipal water and sewer will be provided to each lot, along with full underground services and new road infrastructure scheduled for completion (estimated April 2026). Level topography and accessible configuration allow for straightforward construction and efficient truck circulation. Zoned I2 – General Industrial, permitting a broad range of industrial and commercial uses including manufacturing, warehousing, fabrication, contractor services, distribution, and related industrial operations. Strategically located minutes from Highway 6. Lots can be purchased separately, see individual listings. Individual Lot prices as follows: Lot 2 - 2.88 (2.51 net useable) $1,004,000 | Lot 3 - 1.42 (1.21 net useable) $484,000 | Lot 4 - 1.19 (.99 net useable) $396,000 | Lot 5 - 1.84 (1.34 net useable) $536,000 | Lot 6 - 2.77 (2.72 net useable) $1,088,000 (id:27476)

Property Highlights

MLS® Number
10377291
Type
Vacant Land
Ownership Type
Freehold
Land Size
10.1 ac|10 - 50 acres

Building

Building Type
Other
Amenities
Public Transit, Recreation, Schools
Fireplace Present
No
Basement Type
Basement Features
Building Heating Type
Heating Fuel
Building Cooling Type

Utilities

Water
Municipal water
Utility Sewer
Municipal sewage system

Location

Learn more about this property
Listing provided by:
RE/MAX Vernon
MLS® number:
10377291
Agent:
Don Kassa
*Indicates required field
Name is required
Email is required
Please enter a valid phone number (e.g., 416-111-1111).

Street Spotlight - For sale