222 Temple Street Unit# 1, Sicamous, British Columbia V0E 2V0

Listed for:
$639,000
3 beds
3 baths
Listed 42 days ago
Row / Townhouse for rent: 222 Temple Street Unit# 1, Sicamous, British Columbia V0E 2V0

View all 31 photos

Learn more about this property
Listing provided by:
eXp Realty (Sicamous)
MLS® number:
10358256
Agent:
Jessica Klikach
*Indicates required field
Name is required
Email is required
Please enter a valid phone number (e.g., 416-111-1111).

About

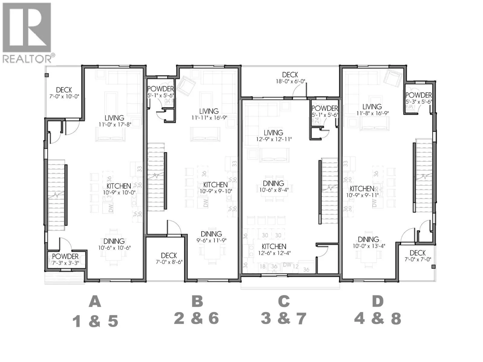
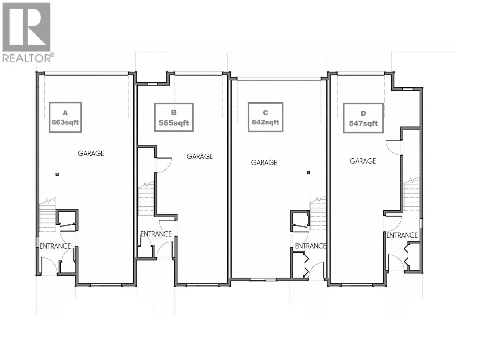
Welcome to #1 at MaraVista Sicamous — the most private home in the complex, with only one shared wall on the north side. This thoughtfully designed townhome offers 1,582 sq.ft. of living space plus an ample 663 sq.ft. garage w/ 8’ overhead door, measuring 39’ deep x 19.5’ wide (exterior). The main entry offers a coat closets, leading upstairs to a bright, open-concept main floor w/ a eating bar, electric fireplace, dining area, powder room, and a 7’ x 8.5’ outdoor deck. On the top floor, you’ll find 2 spacious bedrooms plus a den — both bedrooms feature private ensuites, & the primary includes a full walk-in closet. Laundry is conveniently located upstairs. Quartz counter tops through-out & off white color drenched walls and trim the modern vibes can be compliments beautifully with your Beach boho decore. Modern finishings include white cabinetry, matte black hardware, neutral vinyl plank flooring, & enhanced soundproofing. The exterior features Hardy Plank siding, energy-efficient windows, & a high-efficiency mini-split A/C system for year-round comfort. Fully fenced yard. Prewired for Fiber Optic internet coming to Sicamous 2026. With only 5% down, plus receive a $5,000 appliance credit for the first 4 units sold in the building! Low Strata $356.11/mPet size restrictions apply. Long-term rentals only. Located close to downtown Sicamous, parks, beaches, & schools — this is your opportunity to get into one of the most functional & stylish townhomes in the Shuswap. (id:27476)

Property Highlights

MLS® Number
10358256
Type
Single Family
Community Name
MaraVista
Maintenance Fee
356.11
Ownership Type
Strata
Land Size
under 1 acre
Parking Space Total
3

Building

Building Type
Row / Townhouse
Storeys
3.00
Square Footage
1551 sqft
Bathrooms Total
3
Bedrooms Total
3
Amenities
Clubhouse
Exterior Finish
Other
Fireplace Present
Yes
Basement Type
Basement Features
Building Heating Type
Heat Pump
Heating Fuel
Electric
Building Cooling Type
Heat Pump

Utilities

Water
Municipal water
Utility Sewer
Municipal sewage system

Room Layout

Other
Second level
7' x 10'
Partial bathroom
Second level
7'3'' x 3'3''
Dining room
Second level
10'6'' x 10'6''
Living room
Second level
11' x 17'8''
Kitchen
Second level
10'9'' x 10'
Full bathroom
Third level
10'4'' x 5'4''
Other
Third level
7'3'' x 5'7''
Full ensuite bathroom
Third level
8'6'' x 7'3''
Bedroom
Third level
7'5'' x 9'2''
Bedroom
Third level
10'5'' x 12'3''
Primary Bedroom
Third level
10'6'' x 12'
Other
Main level
39' x 19'5''

Location

Street Spotlight - For sale