222 Temple Street Unit# 6, Sicamous, British Columbia V0E 2V0

Listed for:
$589,000
3 beds
3 baths
Listed 62 days ago
Row / Townhouse for rent: 222 Temple Street Unit# 6, Sicamous, British Columbia V0E 2V0

View all 29 photos

Learn more about this property
Listing provided by:
eXp Realty (Sicamous)
MLS® number:
10358273
Agent:
Jessica Klikach
*Indicates required field
Name is required
Email is required
Please enter a valid phone number (e.g., 416-111-1111).

About

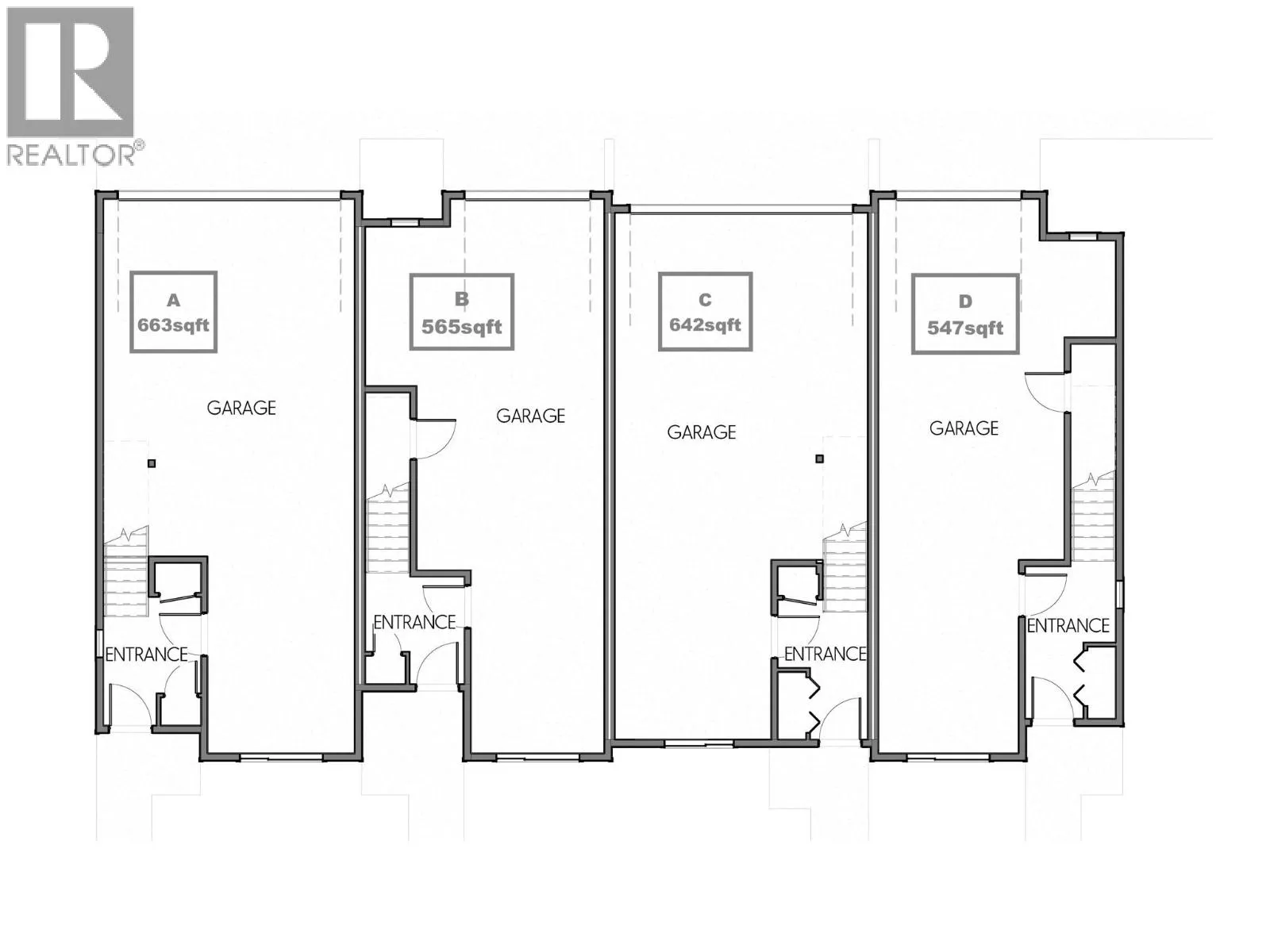
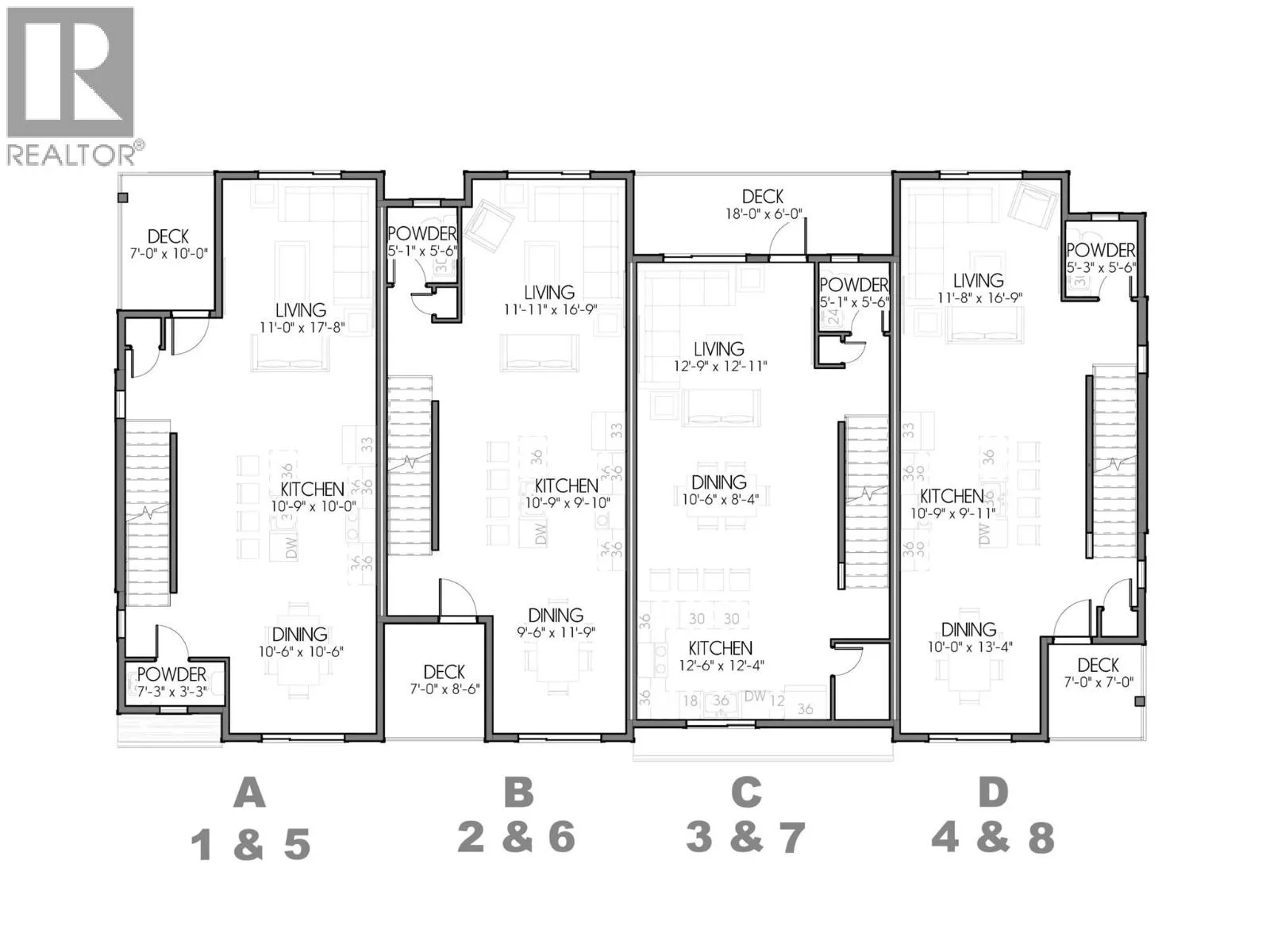
Welcome to #6 at MaraVista Sicamous — a thoughtfully designed 1,436 sq.ft. townhome combining style, comfort, & functionality. This home includes a generous garage with 8’ overhead door, measuring 39’ deep x 18’ wide (exterior), providing ample room for vehicles, storage, & recreational gear. Step inside to a welcoming entry with coat closet, leading upstairs to a bright, open-concept main floor with 9’ ceilings. The layout is ideal for entertaining, featuring a large eating bar, electric fireplace, spacious dining area, powder room, & a 7’ x 8.5’ outdoor deck. Upstairs, the primary bedroom is ideally located at the back of the home for privacy & quiet — complete with a full ensuite & an enhanced walk-in closet offering exceptional storage & organization potential. A second bedroom also features its own ensuite, while a versatile den provides space for an office, hobby room, or guest area. Laundry is conveniently located on the top floor. Modern finishings include quartz countertops throughout, white cabinetry, matte black hardware, neutral vinyl plank flooring, off-white walls & trim, & enhanced soundproofing. The exterior boasts Hardy Plank siding, energy-efficient windows, & a high-efficiency mini-split A/C system for year-round comfort. Fully fenced yard. With only 5% down, plus a $5,000 appliance credit for the first 4 units sold in the building, Low strata $356.11/month. Pet size restrictions apply. Walking to Beach, Shopping, Restaurants. (id:27476)

Property Highlights

MLS® Number
10358273
Type
Single Family
Community Name
MaraVista
Maintenance Fee
356.11
Ownership Type
Strata
Land Size
under 1 acre
Parking Space Total
3

Building

Building Type
Row / Townhouse
Storeys
3.00
Square Footage
1463 sqft
Bathrooms Total
3
Bedrooms Total
3
Amenities
Park, Recreation, Schools, Shopping
Exterior Finish
Other
Fireplace Present
Yes
Basement Type
Basement Features
Building Heating Type
Heat Pump
Heating Fuel
Electric
Building Cooling Type
Heat Pump

Utilities

Water
Municipal water
Utility Sewer
Municipal sewage system

Room Layout

Other
Second level
7'0'' x 8'6''
Partial bathroom
Second level
5'1'' x 5'6''
Dining room
Second level
9'6'' x 11'9''
Living room
Second level
11'11'' x 16'9''
Kitchen
Second level
10'9'' x 9'10''
Bedroom
Third level
9'2'' x 10'6''
Bedroom
Third level
7'9'' x 9'11''
Full bathroom
Third level
9'5'' x 5'0''
Other
Third level
5'9'' x 6'5''
Full ensuite bathroom
Third level
6'0'' x 9'4''
Primary Bedroom
Third level
11'2'' x 12'0''

Location

Street Spotlight - For sale