222 Temple Street Unit# 7, Sicamous, British Columbia V0E 2V0

Listed for:
$609,000
3 beds
3 baths
Listed 62 days ago
Row / Townhouse for rent: 222 Temple Street Unit# 7, Sicamous, British Columbia V0E 2V0

View all 34 photos

Learn more about this property
Listing provided by:
eXp Realty (Sicamous)
MLS® number:
10358267
Agent:
Jessica Klikach
*Indicates required field
Name is required
Email is required
Please enter a valid phone number (e.g., 416-111-1111).

About

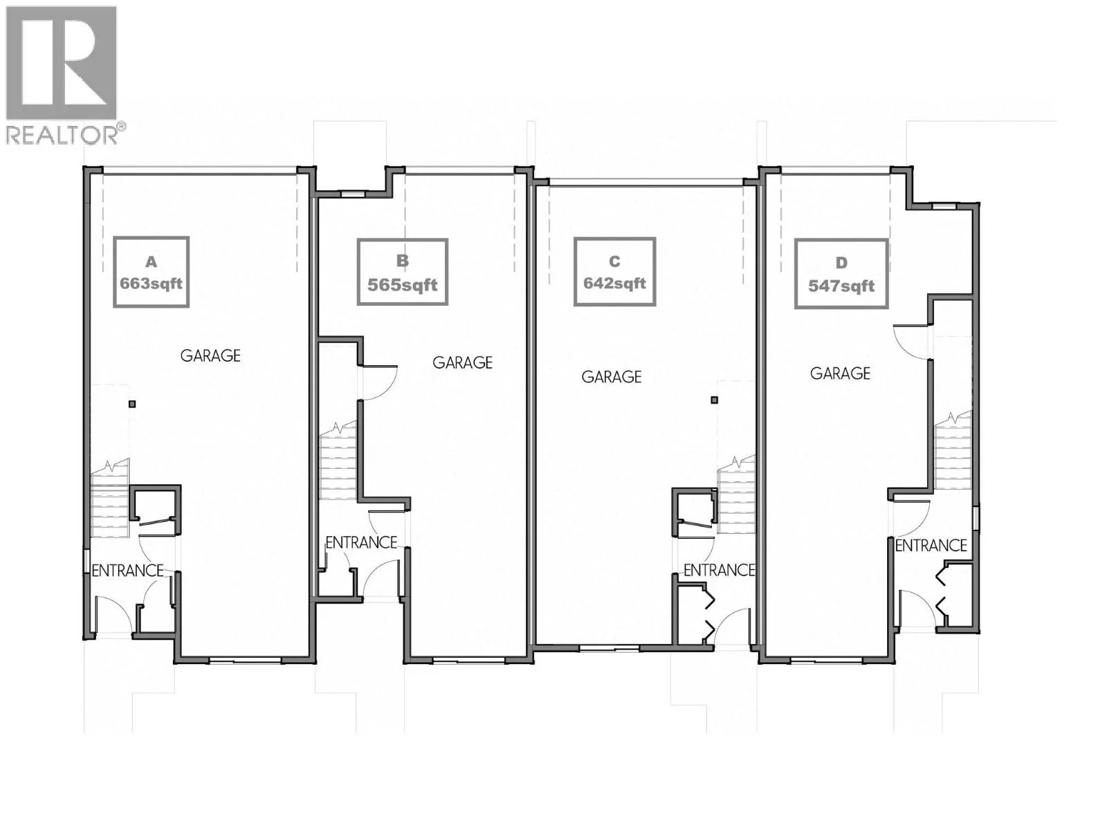
Welcome to Unit 7 at MaraVista— This layout features the largest outdoor deck in the complex, measuring 13’ x 6’, perfect for entertaining & relaxing. Inside this unit is the only floorplan offering a chef-style kitchen with three-sided counter space, a walk-in pantry, quartz countertops, white cabinetry, & matte black hardware—ideal for those who love to cook and host. The open-concept main floor has enhancements like an electric fireplace & powder room, Upstairs, you’ll find three full-size bedrooms, including a primary suite with a generous walk-in closet & private ensuite. A second full bathroom & laundry are also located on the upper level for convenience. Interior finishes include 9’ ceilings, neutral vinyl plank flooring, enhanced soundproofing, & soft white walls and trim that suit a variety of décor styles. The oversized garage is located on the lower entry level, measuring approximately 642 sq.ft. with an 8’ overhead door—39’ deep by 15’ wide (exterior)— excellent space for boat storage, a home gym, or recreational gear. Built with Hardie Plank siding, energy-efficient windows, and high-efficiency mini-split heating and cooling, MaraVista blends comfort with efficiency. Located at 222 Temple Street, just a short walk to downtown Sicamous, the beach, schools, & local amenities. Pet-friendly (with size restrictions) & limited to long-term rentals only. A $5,000 appliance credit is available for the first four units sold. Estimated occupancy is January 2026. (id:27476)

Property Highlights

MLS® Number
10358267
Type
Single Family
Community Name
MaraVista
Maintenance Fee
356.11
Ownership Type
Strata
Land Size
under 1 acre
Parking Space Total
4

Building

Building Type
Row / Townhouse
Storeys
3.00
Square Footage
1486 sqft
Bathrooms Total
3
Bedrooms Total
3
Amenities
Clubhouse
Exterior Finish
Other
Fireplace Present
Yes
Basement Type
Basement Features
Building Heating Type
Heat Pump
Heating Fuel
Electric
Building Cooling Type
Heat Pump

Utilities

Water
Municipal water
Utility Sewer
Municipal sewage system

Room Layout

Other
Second level
18'0'' x 6'0''
Partial bathroom
Second level
5'1'' x 5'6''
Dining room
Second level
10'6'' x 8'4''
Living room
Second level
12'9'' x 12'11''
Kitchen
Second level
12'6'' x 12'4''
Bedroom
Third level
8'11'' x 10'1''
Bedroom
Third level
9'1'' x 12'6''
Full bathroom
Third level
10'0'' x 5'0''
Other
Third level
5'8'' x 7'2''
Full ensuite bathroom
Third level
10'0'' x 5'0''
Primary Bedroom
Third level
12'4'' x 12'4''

Location

Street Spotlight - For sale