Lot 25-7 Michaela Street, Pictou, Nova Scotia B0K 1H0

Listed for:
$424,900
2 beds
2 baths
Listed 173 days ago
House for rent: Lot 25-7 Michaela Street, Pictou, Nova Scotia B0K 1H0

View all 7 photos

Learn more about this property
Listing provided by:
The Agency Real Estate Brokerage
MLS® number:
202506048
Agent:
Cait Banks
*Indicates required field
Name is required
Email is required
Please enter a valid phone number (e.g., 416-111-1111).

About

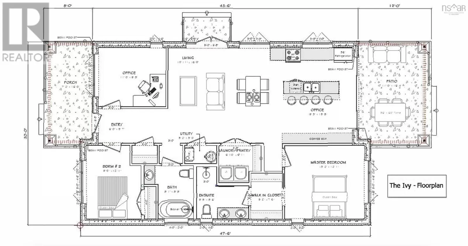
Head east on Church St toward Market St, Continue onto Denoon St. Continue onto Beeches Rd. Destination will be on the left This is a Facsimile Listing for a New Build. Photos Included Are Artist Renderings. Welcome to The IvyYour gateway to effortless living in seaside Pictou. Discover The Ivy, the perfect home on a double lot for those seeking a low-maintenance, all-inclusive lifestyle - with no condo fees. Designed with lifestyle and comfort in mind, this stunning new build offers the best of modern design, convenience, and timeless charm. Located just minutes from Pictous historic waterfront, hospitals, vibrant shops, and cozy restaurants, RoseView Estates combines small-town allure with contemporary sophistication. Why The Ivy is your perfect match? Bright and open spaces: Enjoy an open-concept layout, bathed in natural light from large windowsideal for creating a peaceful home office or enjoying quiet evenings. Personal Retreat: Relax in a luxurious ensuite and organize with ease in your spacious walk-in closet, designed to make every day feel like a getaway. Modern kitchens for everyday elegance: Custom cabinetry and premium countertops make meal prep a joy, whether youre hosting or cooking for yourself. Hassle-free, low-maintenance living: A three-year landscaping contract covering lawn care and snow removal ensures your home remains pristine without the effort. Surround yourself with professionally designed green spaces that provide a serene escape and room to enjoy the outdoors. Durable, energy-efficient design: "The Ivy" is built with Insulated Concrete Form (ICF) foundations, offering superior strength, energy efficiency, and year-round comfort, ideal for life in Pictous coastal climate. Seaside living made simple: RoseView Estates offers a harmonious blend of modern convenience and small-town charm. The Ivy provides everything you need for effortless, all-inclusive living. (id:27476)

Property Highlights

MLS® Number
202506048
Type
Single Family
Community Name
Pictou
Ownership Type
Freehold
Land Size
0.129 ac

Building

Building Type
House
Storeys
1.00
Square Footage
1320 sqft
Bathrooms Total
2
Bedrooms Above Ground
2
Bedrooms Total
2
Amenities
Playground, Public Transit, Shopping, Place of Worship, Beach
Exterior Finish
Vinyl
Fireplace Present
No
Basement Type
None
Basement Features
Building Heating Type
Heating Fuel
Building Cooling Type
Heat Pump

Utilities

Water
Municipal water
Utility Sewer
Municipal sewage system

Room Layout

Living room
Main level
19.3x15.8
Other
Main level
3.7x3
Kitchen
Main level
10.11x16
Bedroom
Main level
13.2x12.1
Bedroom
Main level
11.1x9.8
Bedroom
Main level
11.1x12.1
Bath (# pieces 1-6)
Main level
8.3x8.8
Ensuite (# pieces 2-6)
Main level
8.6x8.8
Other
Main level
5.2x7.6
Utility room
Main level
8.4x6.2

Location

Street Spotlight - For sale