Lot 25-5 Michaela Street, Pictou, Nova Scotia B0K 1H0

Listed for:
$374,900
2 beds
2 baths
Listed 161 days ago
House for rent: Lot 25-5 Michaela Street, Pictou, Nova Scotia B0K 1H0

View all 7 photos

Learn more about this property
Listing provided by:
The Agency Real Estate Brokerage
MLS® number:
202506480
Agent:
Cait Banks
*Indicates required field
Name is required
Email is required
Please enter a valid phone number (e.g., 416-111-1111).

About

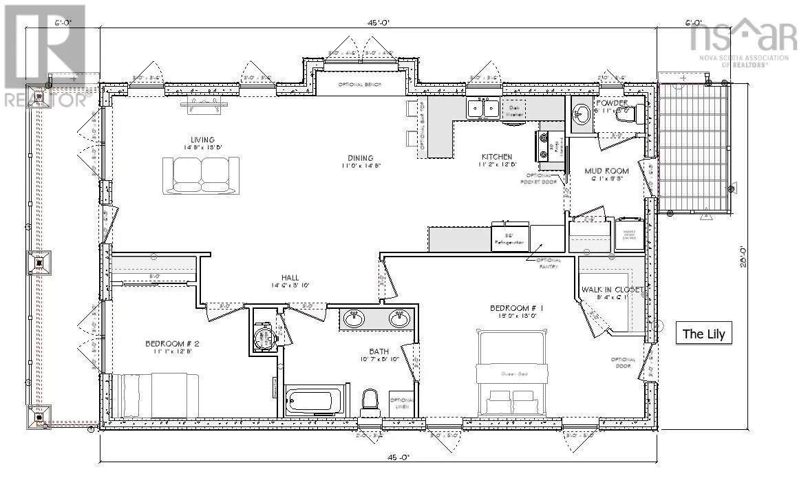
Head east on Church St toward Market St, Continue onto Denoon St. Continue onto Beeches Rd. Destination will be on the left. This is a Facsimile Listing for a New Build. Photos included are Artist Renderings. Welcome to The Lily - Effortless living by the sea. Discover your perfect your round retreat at RoseView Estates, a new subdivision in picturesque Pictou. Designed with comfort and convenience in mind, "The Lily" is ideal for remote workers and those looking for a worry-free, all-inclusive lifestyle in a charming seaside town - with no condo fees. Located just minutes from Pictous historic waterfront, hospitals, boutique shops, and delightful dining spots, RoseView Estates offers the perfect blend of small-town charm and modern sophistication. Each home is built with Insulated Concrete Form (ICF) foundations for superior strength, energy efficiency, and year-round comfort. Why youll love living here? Bright, spacious homes: Open-concept layouts and oversized windows flood your home with natural lightperfect for creating a calming workspace or enjoying peaceful mornings with a cup of coffee. Designer Kitchens: Featuring custom cabinetry and premium countertops these kitchens make cooking a pleasure, whether you're whipping up a quick lunch or hosting friends. Low-maintenance comfort: A three-year landscaping contract covering lawn care and snow removal means you can focus on what matters most. Added amenities for an easy lifestyle: Personalize your space with options like cortex flooring and ceiling-high cabinets. Professionally designed green spaces provide tranquillity and a sense of community. RoseView Estates makes life simple, stylish, and serene. Here, you'll enjoy the charm of coastal living without the upkeep. (id:27476)

Property Highlights

MLS® Number
202506480
Type
Single Family
Community Name
Pictou
Ownership Type
Freehold
Land Size
0.129 ac

Building

Building Type
House
Storeys
1.00
Square Footage
1260 sqft
Bathrooms Total
2
Bedrooms Above Ground
2
Bedrooms Total
2
Amenities
Playground, Public Transit, Shopping, Place of Worship, Beach
Exterior Finish
Vinyl
Fireplace Present
No
Basement Type
None
Basement Features
Building Heating Type
Heating Fuel
Building Cooling Type
Heat Pump

Utilities

Water
Municipal water
Utility Sewer
Municipal sewage system

Room Layout

Living room
Main level
14.5x15.6
Dining room
Main level
11x14.6
Kitchen
Main level
11.2x12.8
Mud room
Main level
6.1x9.3
Bedroom
Main level
19.0x13.0
Bath (# pieces 1-6)
Main level
10.7x8.10
Bedroom
Main level
11.1x12.5

Location

Street Spotlight - For sale